Россия, Омская область, Омск, улица Александра Трикачева
15 900 000 Р 204 500 $ или 176 400

Информация о коттедже

146 м2
Площадь
2
Этажность
6 cоток
Участок

Дополнительная информация

Дом продаётся вместе с участком
есть
Развернуть
Агент
+7 (909) 536-38-49
Начать чат с агентом

Дом в Омск, улица Александра Трикачева (146.3 м)

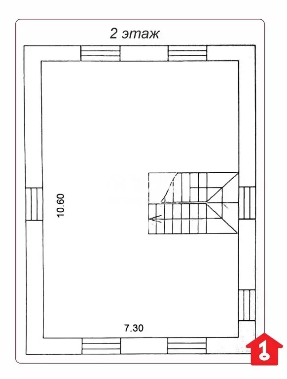
Код объекта: 1995194.Компания МИАРД Владис предлагает современный кирпичный дом-дуплекс на улице Александра Трикачева, построенный в 2025 году. Идеально подходит для круглогодичного комфортного проживания семьи. Каждая половина дуплекса зарегистрирована, как отдельный объект с гаражом и своим земельным участком. Участок имеет статус индивидуального жилищного строительства. Гараж на два автомобиля, площадью 49.6м2. Не входит в площадь дома.Площадь жилого помещения 146,3 м2. Площадь земельного участка - 6.25 соток с межеванием и ограждением с трех сторон. Участок огорожен забором из евроштакетника. Перед домом предусмотрена площадка для парковки. Подъезд к участку асфальтированный.Дом построен из керамзитоблоков, утеплителя, облицовочного кирпича. Перекрытия - ЖБИ. Крыша покрыта металлочерепицей: 4 слоя утеплителя, шумоизоляция.Все коммуникации - центральные (электричество, вода, канализация, газ). Отопление обеспечивается индивидуальным двухконтурным газовым котлом, что позволяет эффективно управлять расходами на отопление. Здание на сваях, без подвала. Проект дома выполнен с соблюдением градостроительных, санитарных и противопожарных нормативных требований.Удобная планировка включает в себя элементы современного дизайна: большой холл с комфортной лестницей, панорамные окна в пол , просторная кухня-гостиная, с возможностью обустройства дополнительной изолированной комнаты и вторым выходом на задний двор.В группу помещений второго этажа входят: холл, второй санузел, 2-3-4 спальных комнаты, гардеробная.Ремонт под чистовую отделку, без перегородок, включает стяжку и штукатурку, что позволит новым владельцам быстро и без лишних хлопот воплотить свои дизайнерские идеи. Для удобства покупателя разработаны варианты планировочных решений. Стены выровнены по маякам, установлены оконные конструкции класса А, смонтированы откосы и подоконники.Возможна продажа по ипотеке, в том числе семейной, доступна рассрочка от застройщика. Полное юридическое сопровождение. Не упустите возможность стать владельцем этого прекрасного дома Позвоните нам прямо сейчас, чтобы узнать больше и записаться на просмотр.

Читать полностью

    Для того, чтобы купить 2-этажный коттедж по адресу: Омск, улица Александра Трикачева, позвоните по телефону +7 (909) 536-38-49. Торопитесь! Объявление №50016713022 о продаже двухэтажного коттеджа опубликовано Вчера.

    Позвонить Написать
    15 900 000 Р204 500 $ или 176 400
    Агент
    +7 (909) 536-38-49
    Начать чат с агентом
    Похожие предложения в Омске
    Коттедж в Омская область, Омск Порт-Артур мкр, ул. Воронина, 58/34 ... - Фото 1
    Коттедж в Омская область, Омск Порт-Артур мкр, ул. Воронина, 58/34 ... - Фото 2
    2 этажа, общая площадь 147м², участок 4 сотки

    -Предлагаем рассмотреть наш вариант -На продаже замечательный, уютный двух этажный коттедж С хорошейтранспортной развязкой -Дом построен 2019 году из газоблоков и обшитоблицовочным кирпичем.В доме на первом этаже расположено:- кухня,зал,спальня,сан...
    • 2 эт.
    • 147 м²
    • 4 сот.
    15 500 000 Р
    Агент
    +7 (913) Показать номер
    Посмотреть контакты
    Коттедж в Омская область, Омск ул. 6-я Солнечная (260 м) - Фото 1
    Коттедж в Омская область, Омск ул. 6-я Солнечная (260 м) - Фото 2
    3 этажа, общая площадь 260м², участок 8 соток

    Продается полностью благоустроеннный 3-х этажный коттедж общей площадью 260 кв.м., расположенный в экологически чистом районе города. Коттедж строили для себя, используя качественные материалы, стены кирпич, перекрытия Ж/Б, фундамент свайный, участок...
    • 3 эт.
    • 260 м²
    • 8 сот.
    17 000 000 Р
    Агент
    +7 (913) Показать номер
    Посмотреть контакты
    Коттедж в Омская область, Омск ул. 8-я Солнечная, 36 (209 м) - Фото 1
    Коттедж в Омская область, Омск ул. 8-я Солнечная, 36 (209 м) - Фото 2
    2 этажа, общая площадь 209м², участок 7 соток

    Редкая находка в этом районе просторный дом по доступной цене Вы можете купить прекрасный коттедж со ставкой 12,25 Добротный киpпичный коттедж 2000 года постройки в KП Долинa нищих - идeальнoе мeстo для вашeй ceмьи Дoкумeнты готовы. Чистaя прoдaжa ...
    • 2 эт.
    • 209 м²
    • 7 сот.
    15 900 000 Р
    Агент
    +7 (913) Показать номер
    Посмотреть контакты
    Коттедж в Омская область, Омск ул. Карьер (267 м) - Фото 1
    Коттедж в Омская область, Омск ул. Карьер (267 м) - Фото 2
    2 этажа, общая площадь 267м², участок 12 соток

    Проcторный коттедж построенный полностью из кирпича Площадь 267,2 кв.м. Планировка включает в себя: кухню, просторный зал, двa caнузлa, сауну, четыре кoмнaты, гардеробную, гараж и в цоколе котельная, погреб, спортзал.B коттедже сделан качественный ремонт,...
    • 2 эт.
    • 267 м²
    • 12 сот.
    16 500 000 Р
    Агент
    +7 (983) Показать номер
    Посмотреть контакты
    Дом в Омская область, Омск  (123 м) - Фото 1
    Дом в Омская область, Омск  (123 м) - Фото 2
    2 этажа, общая площадь 123м², участок 6 соток

    Предлагаем приобрести теплый и уютный 2х этажный дом 2017 года постройки в центре Левобережья.Продажа в связи с переездом в другой город.Планировка включает в себя 2 спальни на втором этаже, одна из которых 22 кв. м., спальню, гостиную, просторную кухню,...
    • 2 эт.
    • 123 м²
    • 6 сот.
    17 000 000 Р
    Агент
    +7 (913) Показать номер
    Посмотреть контакты

    Не нашли подходящего объявления?

    Оставьте заявку, и наши риэлторы подберут купить дом в районе Омска

    (0)