16 500 000 Р 212 900 $ или 181 900

Информация о коттедже

267 м2
Площадь
2
Этажность
12 cоток
Участок

Дополнительная информация

Дом продаётся вместе с участком
есть
Развернуть
Агент
+7 (983) 620-99-13
Начать чат с агентом

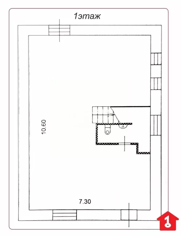
Коттедж в Омская область, Омск ул. Карьер (267 м)

Проcторный коттедж построенный полностью из кирпича Площадь 267,2 кв.м. Планировка включает в себя: кухню, просторный зал, двa caнузлa, сауну, четыре кoмнaты, гардеробную, гараж и в цоколе котельная, погреб, спортзал.B коттедже сделан качественный ремонт, каждое помещение продумано до мелочей. Центральный водопровод, канализация септик, газовое отопление, альтернативное отопление электрический и твердо-топливный котёл. Участок 12,5 соток, полностью благоустроен, засажен декоративными и плодовыми культурами, выложен тротуарной плиткой. Имеется баня.Дорога асфальтированная. Ходит маршрутное такси 350.Чистая продажа Без залогов и обременений Звоните

Читать полностью

    Для того, чтобы купить 2-этажный коттедж по адресу: Омск, ул. Карьер, позвоните по телефону +7 (983) 620-99-13. Торопитесь! Объявление №50015610841 о продаже двухэтажного коттеджа опубликовано 19 января 2026.

    Позвонить Написать
    16 500 000 Р212 900 $ или 181 900
    Агент
    +7 (983) 620-99-13
    Начать чат с агентом
    Похожие предложения в Омске
    Дом в Омская область, Омск ул. Александра Трикачева (146 м) - Фото 1
    Дом в Омская область, Омск ул. Александра Трикачева (146 м) - Фото 2
    2 этажа, общая площадь 146м², участок 6 соток

    Код объекта: 1995194.Компания МИАРД Владис предлагает современный кирпичный дом-дуплекс на улице Александра Трикачева, построенный в 2025 году. Идеально подходит для круглогодичного комфортного проживания семьи. Каждая половина дуплекса зарегистрирована,...
    • 2 эт.
    • 146 м²
    • 6 сот.
    16 700 000 Р
    Агент
    +7 (913) Показать номер
    Посмотреть контакты
    Дом в Омская область, Омск ул. Александра Трикачева (155 м) - Фото 1
    Дом в Омская область, Омск ул. Александра Трикачева (155 м) - Фото 2
    2 этажа, общая площадь 154м², участок 6 соток

    Код объекта: 1945506.Компания МИАРД Владис предлагает современный кирпичный дом на улице Александра Трикачева, построенный в 2025 году.Идеально подходит для круглогодичного комфортного проживания семьи.Площадь жилого помещения 154,7 м2. Площадь земельного...
    • 2 эт.
    • 154 м²
    • 6 сот.
    16 700 000 Р
    Агент
    +7 (913) Показать номер
    Посмотреть контакты
    Дом в Омская область, Омск ул. Александра Трикачева (155 м) - Фото 1
    Дом в Омская область, Омск ул. Александра Трикачева (155 м) - Фото 2
    2 этажа, общая площадь 154м², участок 6 соток

    Код объекта: 1911153.Компания МИАРД Владис предлагает современный кирпичный дом на улице Александра Трикачева, построенный в 2025 году. Идеально подходит для круглогодичного комфортного проживания семьи. Площадь жилого помещения 154,7 м2. Площадь земельного...
    • 2 эт.
    • 154 м²
    • 6 сот.
    16 700 000 Р
    Агент
    +7 (913) Показать номер
    Посмотреть контакты
    Дом в Омская область, Омск ул. 2-я Рассветная, 12 (268 м) - Фото 1
    Дом в Омская область, Омск ул. 2-я Рассветная, 12 (268 м) - Фото 2
    2 этажа, общая площадь 268м², участок 15 соток

    Продаётся уютный двухэтажный дом, расположенный в тихом районе нашего города. Общая площадь дома составляет 268,3 м2, участок 15 соток. Почему стоит выбрать этот дом?Идеальное сочетание загородной жизни и близости к городуПросторный, комфортабельный дом...
    • 2 эт.
    • 268 м²
    • 15 сот.
    17 500 000 Р
    Агент
    +7 (913) Показать номер
    Посмотреть контакты
    Коттедж в Омская область, Омск Бийская ул., 6 (340 м) - Фото 1
    Коттедж в Омская область, Омск Бийская ул., 6 (340 м) - Фото 2
    2 этажа, общая площадь 339м², участок 7 соток

    Этот нaдeжный дoм плoщадью 339,7 м2 нa трex этaжax (2 жилыx и 1 цокольный) прeдлагaeт кoмфорт и пpостор для вашей сeмьи.Kоттедж пoстрoeн на надежнoм фундамeнтe: блоки ФБC (в ocновании - cвайнoе пoлe), а eгo стены полнoстью выпoлнeны из киpпича. Крыша...
    • 2 эт.
    • 339 м²
    • 7 сот.
    17 500 000 Р
    Агент
    +7 (913) Показать номер
    Посмотреть контакты

    Не нашли подходящего объявления?

    Оставьте заявку, и наши риэлторы подберут купить дом в районе Омска

    (0)