340 000 Р 4 050 $ или 3 490

Информация об помещении

1
Этаж

Состояние и оснащение

Количество этажей
16
Развернуть
Агент
+7 (913) 661-82-36
Начать чат с агентом

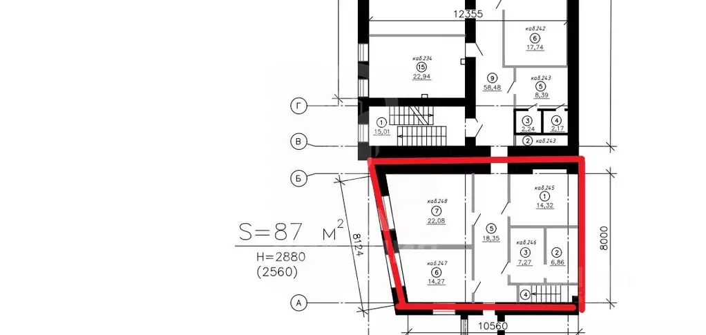
Помещение свободного назначения в Омская область, Омск ул. 70 лет ...

БЕЗ КОМИССИИ ЛЕВЫЙ БЕРЕГ ПЕРВАЯ ЛИНИЯ Сдается просторное помещение 170м2 в новом развитом микрорайоне Левого берега.Высота потолков 3 м , 3 отдельных входа в помещение, сигнализация, канализация,мокрая точка(холодная вода), Парковка перед входом.Предоставляется место для размещение вывески на фасаде здания.Активный пешеходный и автомобильный трафик,ядом остановка общественного транспорта, прекрасная транспортная развязка.Не рассматриваем магазины с алкогольной продукцией.Звоните, ответим на вопросы и организуем показ в удобное Вам время.

Читать полностью
    Позвонить Написать
    340 000 Р4 050 $ или 3 490
    Агент
    +7 (913) 661-82-36
    Начать чат с агентом
    Похожие предложения
    Помещение свободного назначения в Омская область, Омск ул. 70 лет ... - Фото 1
    Помещение свободного назначения в Омская область, Омск ул. 70 лет ... - Фото 2
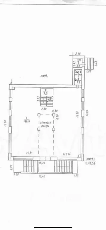
    В аренду предлагается просторное коммерческое помещение в торговом центреОбщая информация- Тип помещения: встроенное помещение свободного назначения- Площадь: 256 кв. м.- Высота потолков: 6 метров- Состояние: отличное, готово к въезду нового арендатора-...
    • 1/1 эт.
    350 000 Р
    Агент
    +7 (913) Показать номер
    Посмотреть контакты
    Помещение свободного назначения в Омская область, Омск ул. Гагарина, ... - Фото 1
    Помещение свободного назначения в Омская область, Омск ул. Гагарина, ... - Фото 2
    БЕЗ КОМИССИИ НА ПРЯМУЮ ОТ СОБСТВЕННИКА Новая Локация предлагает к сдаче площадь под любой торговый бизнес.Отлично подойдет под общепит. Рядом находится Skuratov, ПиццерияИмеется парковочные места.Звоните в любое удобное для Вас время, все расскажем...
    • 1/2 эт.
    343 750 Р
    Агент
    +7 (913) Показать номер
    Посмотреть контакты
    Помещение свободного назначения в Омская область, Омск просп. Мира, ... - Фото 1
    Помещение свободного назначения в Омская область, Омск просп. Мира, ... - Фото 2
    Данные получены с сайта ГИС Торги.- нежилое помещение 1П. Этаж: 1, 2. Материал наружных стен здания, в котором расположено помещение, кирпич. Год постройки здания. Возможность подключения электроснабжения, теплоснабжения, водоснабжения, водоотведения....
    336 267 Р
    Агент
    +7 (913) Показать номер
    Посмотреть контакты
    Помещение свободного назначения в Омская область, Омск ул. Рабиновича, ... - Фото 1
    Помещение свободного назначения в Омская область, Омск ул. Рабиновича, ... - Фото 2
    Аренда от собственника, без комиссии для арендатора.Двухэтажное здание с полноценным подвальным этажом, общей площадью 480 м2. расположено в центре города по адресу ул. Рабиновича, 108. (перекресток с ул. Герцена).Отдельный вход, разгрузочная зона, все...
    • 1/3 эт.
    350 000 Р
    Агент
    +7 (913) Показать номер
    Посмотреть контакты
    Помещение свободного назначения в Омская область, Омск ул. ... - Фото 1
    Помещение свободного назначения в Омская область, Омск ул. ... - Фото 2
    Компания Регион Бизнес Недвижимость Предлагает в аренду, производственно-складские помещения площадью 1500 кв.метров, возможно аренда частично от 300 кв. Удобные подъездные пути.Помещения отапливаемые, все коммуникации, высота 4,5 метра, въезд для...
    • 1/1 эт.
    350 000 Р
    Агент
    +7 (913) Показать номер
    Посмотреть контакты

    Не нашли подходящего объявления?

    Оставьте заявку, и наши риэлторы подберут псн в районе Омска

    (0)