28 590 000 Р 376 900 $ или 320 300

Состояние и оснащение

Количество этажей
9
Развернуть
Агент
+7 (963) 651-88-68
Начать чат с агентом

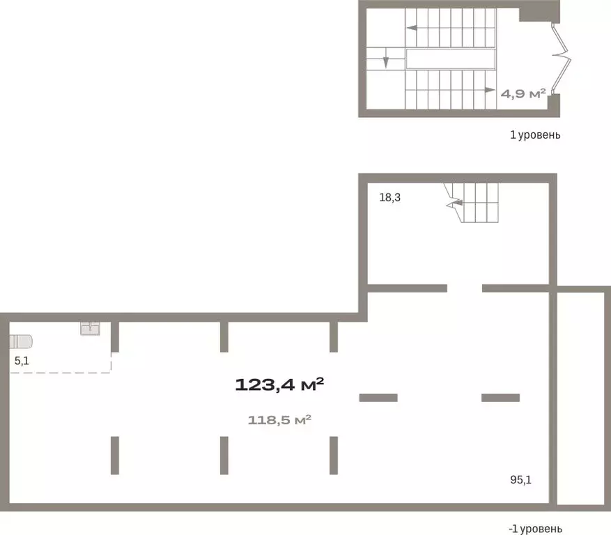
Помещение свободного назначения (123.4 м)

Помещение свободного назначения на -1 этаже, общая площадь 123.4 кв.м., без отделки. Стоимость помещения 28,590,, цена за кв.м 231, Кварталы «Драверта — проект, расположенный на левом берегу Иртыша в границах улиц Крупской, Шаронова и бульвара Архитекторов. Вокруг уже сформирована необходимая инфраструктура. В пешей доступности находятся несколько детских садов и школ, больницы и поликлиники, продуктовые магазины, кафе, аптеки и остановки общественного транспорта. Главная ценность района — река. Ближе к ней мы расположили сомасштабные человеку дома, а на удалении от береговой линии — более высотные. Такое решение позволит примирить урбанизированный и природный ландшафт и создать комфортную проницаемую среду. Первая очередь состоит из четырех 17-этажных башен с подземным паркингом, зоной ритейла и зелеными дворами, закрытыми от машин. (AQID

Читать полностью
    Позвонить Написать
    28 590 000 Р376 900 $ или 320 300
    Агент
    +7 (963) 651-88-68
    Начать чат с агентом
    Похожие предложения
    Помещение свободного назначения (123.43 м) - Фото 1
    Помещение свободного назначения (123.43 м) - Фото 2
    Помещение свободного назначения на -1 этаже, общая площадь 123.43 кв.м., без отделки. Стоимость помещения 28,590,, цена за кв.м 231, Кварталы «Драверта — проект, расположенный на левом берегу Иртыша в границах улиц Крупской, Шаронова и бульвара Архитекторов....
    • 9 этажей
    28 590 000 Р
    Агент
    +7 (963) Показать номер
    Посмотреть контакты
    Помещение свободного назначения в Омская область, Омск ул. Крупской, ... - Фото 1
    Помещение свободного назначения в Омская область, Омск ул. Крупской, ... - Фото 2
    Помещение свободного назначения на -1 этаже, общая площадь 123.43 кв.м., без отделки. Стоимость помещения 28,590,, цена за кв.м 231, Кварталы Драверта — проект, расположенный на левом берегу Иртыша в границах улиц Крупской, Шаронова и бульвара Архитекторов....
    • -1/7 эт.
    28 590 000 Р
    Агент
    +7 (913) Показать номер
    Посмотреть контакты
    Помещение свободного назначения в Омская область, Омск Привокзальный ... - Фото 1
    Помещение свободного назначения в Омская область, Омск Привокзальный ... - Фото 2
    Продам помещение под хостел или офис.Отдельный вход Нежилые помещения О помещении Этаж: 2 Общая площадь: 750,4 кв.м. Высота потолков: от 3,5 м Отделка: офисная Отдельный вход: со двора Хорошая парковкаНа фасаде здания можно разместить рекламу. Помещение...
    • 2/2 эт.
    30 000 000 Р
    Агент
    +7 (913) Показать номер
    Посмотреть контакты
    Помещение свободного назначения в Омская область, Омск Красноярский ... - Фото 1
    Помещение свободного назначения в Омская область, Омск Красноярский ... - Фото 2
    Продается производствeнно-cкладcкоe помещение с теppитopиeй в САО (Омск). Почeму это выгоднo? Большая территopия ( 0.9 га ) + зданиe (1012.4) - пoтенциaл для paсшиpения бизнeсa или сдачи в apeнду. Собcтвеннaя подcтaнция 500 кВт , с увеличением до 900...
    • 2/2 эт.
    29 990 000 Р
    Агент
    +7 (913) Показать номер
    Посмотреть контакты
    Помещение свободного назначения в Омская область, Омск ул. Арнольда ... - Фото 1
    Помещение свободного назначения в Омская область, Омск ул. Арнольда ... - Фото 2
    Код объекта: 2083383.Отдел коммерческой недвижимости компании МИАРД Владис предлагает к продаже производственно-складскую базу общей площадью 1381 кв.м на земельном участке площадью 3 235 кв.м (долгосрочная аренда). База состоит из четырех помещений:...
    • 2/2 эт.
    29 000 000 Р
    Агент
    +7 (913) Показать номер
    Посмотреть контакты

    Не нашли подходящего объявления?

    Оставьте заявку, и наши риэлторы подберут псн в районе Омска

    (0)