Россия, Омская область, Омск, ЖК Кварталы Драверта
45 300 000 Р 545 000 $ или 478 500

Информация об помещении

1
Этаж

Состояние и оснащение

Количество этажей
9
Развернуть
Агент
+7 (962) 977-98-59
Начать чат с агентом

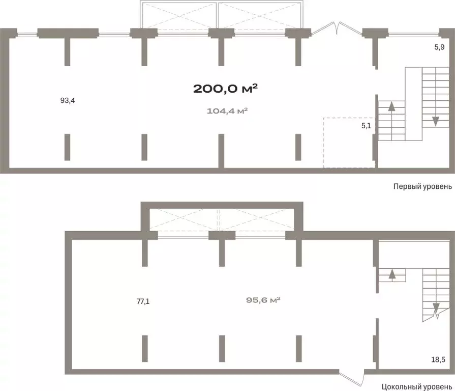
Помещение свободного назначения (199.99 м)

Помещение свободного назначения на 1 этаже, общая площадь 199.99 кв.м., без отделки. Стоимость помещения 45,300,, цена за кв.м 226, Кварталы «Драверта — проект, расположенный на левом берегу Иртыша в границах улиц Крупской, Шаронова и бульвара Архитекторов. Вокруг уже сформирована необходимая инфраструктура. В пешей доступности находятся несколько детских садов и школ, больницы и поликлиники, продуктовые магазины, кафе, аптеки и остановки общественного транспорта. Главная ценность района — река. Ближе к ней мы расположили сомасштабные человеку дома, а на удалении от береговой линии — более высотные. Такое решение позволит примирить урбанизированный и природный ландшафт и создать комфортную проницаемую среду. Первая очередь состоит из четырех 17-этажных башен с подземным паркингом, зоной ритейла и зелеными дворами, закрытыми от машин. (AQID

Читать полностью
    Позвонить Написать
    45 300 000 Р545 000 $ или 478 500
    Агент
    +7 (962) 977-98-59
    Начать чат с агентом
    Похожие предложения
    Помещение свободного назначения в Омская область, Омск пос. Амурский, ... - Фото 1
    Помещение свободного назначения в Омская область, Омск пос. Амурский, ... - Фото 2
    Продажа помещения с арендатором: продуктовый супермаркет Пятерочка г.Омск, ул. Багратиона, 12Площадь 606,1 м2Все коммуникации центральные, по электроэнергии прямой договор от арендатораДоговор от 10.2016г.МАП или/м2Текущая окупаемость 12,9 летСейчас...
    • 1/5 эт.
    45 000 000 Р
    Агент
    +7 (913) Показать номер
    Посмотреть контакты
    Помещение свободного назначения в Омская область, Омск Кварталы ... - Фото 1
    Помещение свободного назначения в Омская область, Омск Кварталы ... - Фото 2
    Помещение свободного назначения на 1 этаже, общая площадь 199.99 кв.м., без отделки. Стоимость помещения 45,300,, цена за кв.м 226, Кварталы Драверта — проект, расположенный на левом берегу Иртыша в границах улиц Крупской, Шаронова и бульвара Архитекторов....
    • 1/7 эт.
    45 300 000 Р
    Агент
    +7 (913) Показать номер
    Посмотреть контакты
    Помещение свободного назначения в Омская область, Омск Полковая ул., ... - Фото 1
    Компания Регион Бизнес Недвижимость Предлагает приобрести, помещение свободного назначения. Двухэтажное административное здание, отличный вариант, хороший трафик, парковка. Рядом остановка общественного транспорта Академия транспорта ,...
    • 1/2 эт.
    45 000 000 Р
    Агент
    +7 (913) Показать номер
    Посмотреть контакты
    Помещение свободного назначения (199.99 м) - Фото 1
    Помещение свободного назначения (199.99 м) - Фото 2
    Помещение свободного назначения на 1 этаже, общая площадь 199.99 кв.м., без отделки. Стоимость помещения 45,300,, цена за кв.м 226, «Кварталы Драверта — проект преобразования левого берега Иртыша, расположенный в одном из самых быстроразвивающихся районов...
    • 1/9 эт.
    45 300 000 Р
    Агент
    +7 (383) Показать номер
    Посмотреть контакты
    Продажа ПСН, Обнинск, ул. Красных Зорь - Фото 1
    Продажа ПСН, Обнинск, ул. Красных Зорь - Фото 2
    Продажа ПСН, Обнинск, ул. Красных Зорь - Фото 3
    Продажа ПСН, Обнинск, ул. Красных Зорь - Фото 4
    Продажа ПСН, Обнинск, ул. Красных Зорь - Фото 5
    Продажа ПСН, Обнинск, ул. Красных Зорь - Фото 6
    Продажа ПСН, Обнинск, ул. Красных Зорь - Фото 7
    Продажа ПСН, Обнинск, ул. Красных Зорь - Фото 8
    Продажа ПСН, Обнинск, ул. Красных Зорь - Фото 9
    Продажа ПСН, Обнинск, ул. Красных Зорь - Фото 10
    Продажа ПСН, Обнинск, ул. Красных Зорь - Фото 11
    Продажа ПСН, Обнинск, ул. Красных Зорь - Фото 12
    Продажа ПСН, Обнинск, ул. Красных Зорь - Фото 13
    Продажа ПСН, Обнинск, ул. Красных Зорь - Фото 14
    Продажа ПСН, Обнинск, ул. Красных Зорь - Фото 15
    Продажа ПСН, Обнинск, ул. Красных Зорь - Фото 16
    Продажа ПСН, Обнинск, ул. Красных Зорь - Фото 17
    Продажа ПСН, Обнинск, ул. Красных Зорь - Фото 18
    Продажа ПСН, Обнинск, ул. Красных Зорь - Фото 19
    Продажа ПСН, Обнинск, ул. Красных Зорь - Фото 20
    общая площадь 495м², полезная площадь 495м²

    Новое современное нежилое здание, расположено на улице Красных зорь. Построено и введено в эксплуатацию в сентябре 2021 года. Панорамное остекление всего здания, создает презентабельный внешний вид. Применены качетсвенные материалы и современный технологии...
    • 495 м²
    • 2-й эт.
    45 000 000 Р
    PRO
    +7 (910) Показать номер
    Посмотреть контакты

    Не нашли подходящего объявления?

    Оставьте заявку, и наши риэлторы подберут псн в районе Омска

    (0)