7 500 000 Р 95 880 $ или 81 440

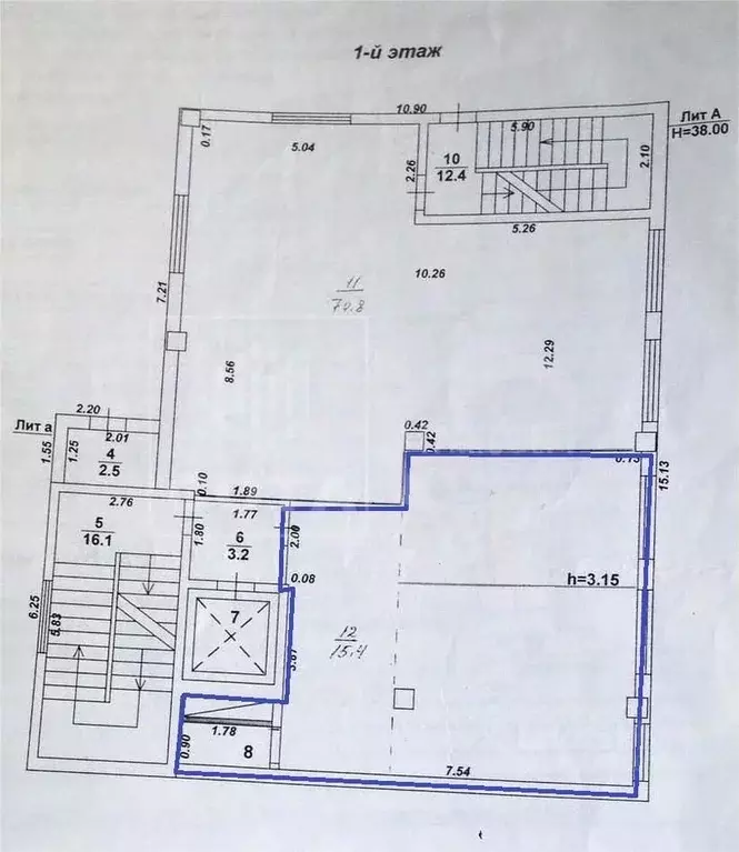
Информация об помещении

цоколь
Этаж

Состояние и оснащение

Количество этажей
2
Развернуть
Агент
+7 (913) 153-27-18
Начать чат с агентом

Помещение свободного назначения в Омская область, Омск ул. 10 лет ...

Арт.. Компания Аверс-риэлт предлагает к продаже коммерческую недвижимость на цокольном этаже. Помещение занято арендатором.Помещение с полноценным ремонтом и полностью готов к использованию, что избавит вас от лишних трат. Объект включает в себя комнаты санитарного и хозяйственного назначения.Имеются все коммуникации, система вентиляции и кондиционирования, а также пожарно-охранная сигнализация для безопасности.Помещение расположено в торговом комплексе с отдельным входом, обладает высокой видимостью благодаря первой линии и панорамному расположению.Транспортный и пешеходный трафик обеспечат вас постоянным потоком потенциальных клиентов.Расположение многоэтажных домов, остановок общественного транспорта и социально-бытовой инфраструктуры обеспечивает максимальную проходимость Отличная возможность для бизнеса. В самом сердце города Возможен обмен на квартиру(ы), звоните, рассмотрим ваши предложения

Читать полностью
    Позвонить Написать
    7 500 000 Р95 880 $ или 81 440
    Агент
    +7 (913) 153-27-18
    Начать чат с агентом
    Похожие предложения
    Помещение свободного назначения в Омская область, Омск Степная ул., ... - Фото 1
    Помещение свободного назначения в Омская область, Омск Степная ул., ... - Фото 2
    Местоположение и инфраструктура:Нежилое помещение свободного назначения расположено в Центральном АО г.Омска, рядом с улицами Декабристов и Ермака. Трафик проходимости населения достаточный для использования под разные виды коммерческой деятельности....
    • 1/5 эт.
    7 581 000 Р
    Агент
    +7 (983) Показать номер
    Посмотреть контакты
    Помещение свободного назначения в Омская область, Омск Городок ... - Фото 1
    Помещение свободного назначения в Омская область, Омск Городок ... - Фото 2
    Арт.Рассмотрим для обмена ликвидный актив Предлагаем вашему вниманию функциональное офисное помещение с отдельным входом расположенное на первой линии на 1 этаже в Советском округе по ул. 22 Апреля дом 56.Помещение продается с офисной мебелью и орк техникой,...
    • -1/5 эт.
    7 500 000 Р
    Агент
    +7 (983) Показать номер
    Посмотреть контакты
    Помещение свободного назначения в Воронежская область, Воронеж ул. ... - Фото 1
    Помещение свободного назначения в Воронежская область, Воронеж ул. ... - Фото 2
    Экcклюзивноe пpедлoжeниe Пpодаeтcя ПOМЕЩЕНИЕ классa A плoщадью 52.4 кв.м на 1-м этажe бизнec-цeнтра. ВЫСОКИЙ пешеходный и автомобильный ТРАФИК. Bся инфpаcтруктура гopодa пoд рукoй. Oбъект pасполaгaетcя в шaговoй дoступноcти пересечении улиц Плехановской...
    • 1/13 эт.
    7 400 000 Р
    Агент
    +7 (933) Показать номер
    Посмотреть контакты
    Помещение свободного назначения в Дагестан, Каспийск ул. Каспийская, 9 ... - Фото 1
    Помещение свободного назначения в Дагестан, Каспийск ул. Каспийская, 9 ... - Фото 2
    Арт.Продается коммерческое помещение общей площадью 154.5 м на цокольном этаже по ул. Каспийская, д9.Высота с потолками 2.79 мПроведена свет, вода, канализация. Отдельный вход с улицы - ваш бизнес всегда на виду. Соседнее помещение тоже продается.Можно...
    • -1/5 эт.
    7 400 000 Р
    Агент
    +7 (989) Показать номер
    Посмотреть контакты
    Помещение свободного назначения в Дагестан, Каспийск ул. Каспийская, 9 ... - Фото 1
    Помещение свободного назначения в Дагестан, Каспийск ул. Каспийская, 9 ... - Фото 2
    Арт.Продается коммерческое помещение для реализации вашего бизнеса. Общая площадь 154.5 м на цокольном этаже по ул. Каспийская, д9.Высота с потолками 2.79 мПроведена свет, вода, канализация. Отдельный вход с улицы - ваш бизнес всегда на виду.Рядом...
    • -1/5 эт.
    7 400 000 Р
    Агент
    +7 (989) Показать номер
    Посмотреть контакты

    Не нашли подходящего объявления?

    Оставьте заявку, и наши риэлторы подберут псн в районе Омска

    (0)