49 300 000 Р 638 600 $ или 538 500

Информация об помещении

2
Этаж

Состояние и оснащение

Количество этажей
2
Развернуть
Агент
+7 (983) 562-46-73
Начать чат с агентом

Помещение свободного назначения в Омская область, Омск просп. Мира, ...

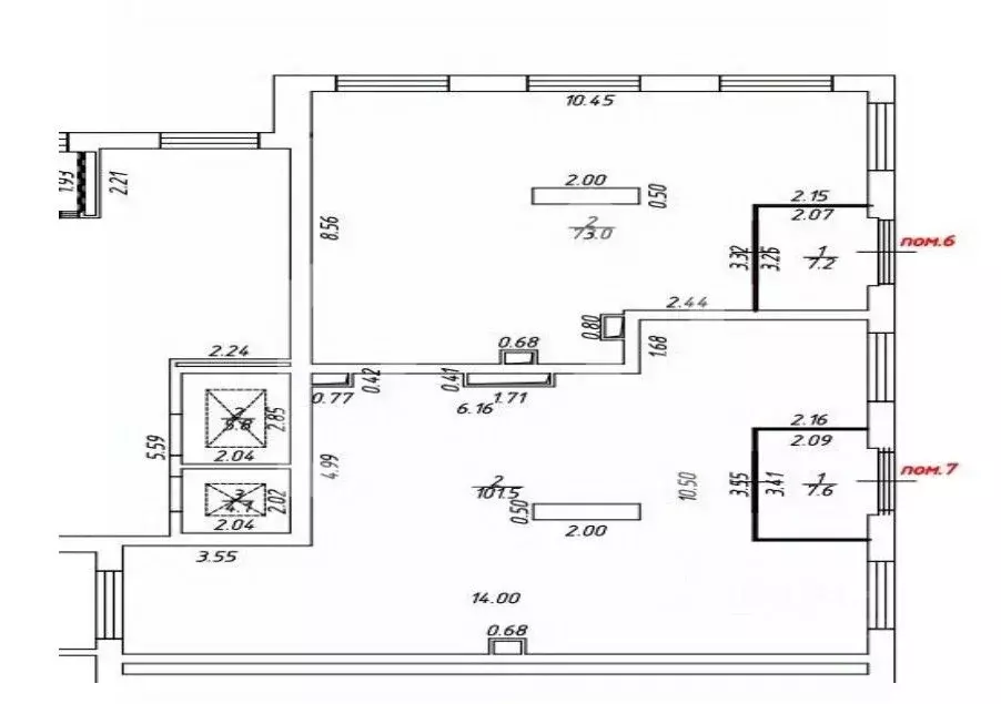
Агентство недвижимости Галеон предлагает Вашему вниманию к продаже 3ех этажное помещение, на окраине города в нефтяниках.Помещение состоит из 2ух этажей общей площадью 690м 2, подвал 362м 2. Здание кирпичное, с отдельным входом, подведены все коммуникации, окна ПВХ.Помещения можно использовать как для организации, так и для гостиницы, общежития и т. П.По всем вопросам, звоните, покажем в любое время Документы прошли юридическую проверку и полностью готовы к сделке. Торг уместен.

Читать полностью
    Позвонить Написать
    49 300 000 Р638 600 $ или 538 500
    Агент
    +7 (983) 562-46-73
    Начать чат с агентом
    Похожие предложения
    Помещение свободного назначения в Омская область, Омск ул. 1-я ... - Фото 1
    Помещение свободного назначения в Омская область, Омск ул. 1-я ... - Фото 2
    Компания Регион Бизнес Недвижимость Предлагает приобрести СТО с оборудованием, двухэтажное административное здание СТО и офисы на втором этаже. Возможно продажа с оборудованием . Удобные подъездные пути, парковка, все коммуникации. Звоните,...
    • 1/2 эт.
    50 000 000 Р
    Агент
    +7 (913) Показать номер
    Посмотреть контакты
    Помещение свободного назначения в Крым, Симферополь бул. Ивана Франко, ... - Фото 1
    Помещение свободного назначения в Крым, Симферополь бул. Ивана Франко, ... - Фото 2
    Объект 2692. Продаётся помещение коммерческого назначения, оборудовано и использовалось под стоматологическую клинику, площадь помещения 100 м2 в центре на бульваре Франко, первая линия дома с отдельным входом. Хороший транспортный и пешеходный трафик....
    • 1/10 эт.
    50 000 000 Р
    Агент
    +7 (918) Показать номер
    Посмотреть контакты
    Помещение свободного назначения в Свердловская область, Тугулымский ... - Фото 1
    Помещение свободного назначения в Свердловская область, Тугулымский ... - Фото 2
    Вниманию предпринимателей и инвесторов Представляем уникальное предложение - полностью функционирующий семейный бизнес, готовый к новому владельцу. Вашему вниманию предлагается двухэтажное здание площадью 1023 м2, включающее в себя действующую пекарню,...
    • 1/2 эт.
    50 000 000 Р
    Агент
    +7 (919) Показать номер
    Посмотреть контакты
    Помещение свободного назначения в Москва Боровское ш., 2Ак2 (80 м) - Фото 1
    Помещение свободного назначения в Москва Боровское ш., 2Ак2 (80 м) - Фото 2
    1095540-gab . Предлагаем угловое помещение свободного назначения формата street-retail с арендатором Wildberries в ЖК Мещерский лес , площадью 80.2 кв. м, расположенное на первом этаже 25-этажного жилого дома. Без комиссии для покупателя.Преимущества...
    • 1/25 эт.
    49 000 000 Р
    Агент
    +7 (938) Показать номер
    Посмотреть контакты
    Помещение свободного назначения в Москва Гродненская ул., 3С1 (49 м) - Фото 1
    Помещение свободного назначения в Москва Гродненская ул., 3С1 (49 м) - Фото 2
    ЛотПродажа коммерческого помещения в новостройке: 48,80 кв. м., 1 этаж в комплексе Кутузов Сити, 1 очередь, корп.1 Гармония, сдача: 3кв. , этажей: 13, адрес Гродненская ул., д. 1, Застройщик: PLATO. Помещение свободного назначения под любой вид деятельности...
    • 1/13 эт.
    48 800 000 Р
    Агент
    +7 (986) Показать номер
    Посмотреть контакты

    Не нашли подходящего объявления?

    Оставьте заявку, и наши риэлторы подберут псн в районе Омска

    (0)