Реализация объекта недвижимости приостановлена

Информация о помещении и здании

3
Этаж
4
Этажность
Развернуть

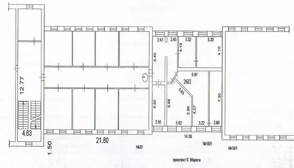
Офис (152.5 м)

Без комиссии Агентство недвижимости Этажи предлагает к продаже офисное помещение 152,5 м в Бизнес-Центре Офис-Сервис , расположенного по адресу: Город Омск, Проспект Карла Маркса 18/1.По правоустанавливающим документам адрес Проспект Карла Маркса 18/1, пом. 26П, но вход через Карла Маркса 20 (Бизнес-Центр Офис-Сервис ).Помещение сдано в Аренду. Арендатор стабильный, снимает больше 10 лет. На сегодня ставка -/м, но это ниже рынка, поэтому есть экономический потенциал.- 1 линия- 3 этаж- Все коммуникации центральные- Пожарная сигнализация- Круглосуточная охрана здания- Доступ в здание возможен в вечернее время- Санузел на этаже- Кондиционеры- Высота потолка - 3.5 м.- Выделенная электрическая мощность - 15 кВт- Кабинетная система из 7 комнат- Парковка возле зданияСтоимость офисного помещения -.Чистая продажа без долгов и обременений.Все документы готовы к сделке.1 собственник - физическое лицо или возможна продажа от ИП.Без комиссии Код пользователя: 118051Номер в базе: 7052053

Читать полностью

    Реализация объекта недвижимости приостановлена

    Не нашли подходящего объявления?

    Оставьте заявку, и наши риэлторы подберут офис в районе Омска

    (0)