3 000 000 Р 39 150 $ или 32 950

Информация о квартире

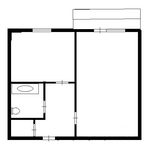
29 м2
Площадь
17 м2
Жилая
5 м2
Кухня
1
Комната
2
Этаж
5
Этажность

Дополнительная информация

Тип дома
кирпичный
Развернуть
Агент
+7 (983) 520-98-53
Начать чат с агентом

1-к кв. Омская область, Омск Арктическая ул., 25 (29.9 м)

Продаётся уютная однокомнатная квартира площадью 29.9 квадратных метров на втором этаже пятиэтажного кирпичного дома, расположенного по адресу: город Омск, Арктическая улица, 25. Жилая площадь составляет 17.9 квадратных метров, что предоставляет достаточно пространства для комфортного проживания. Кухня площадью 5.8 квадратных метров позволит вам с комфортом готовить и проводить время.Из окон открывается приятный вид на тихий двор, где также расположена детская площадка идеальное место для отдыха и игр ваших детей. Для вашего удобства предусмотрена парковка во дворе.В квартире выполнен косметический ремонт, благодаря чему она выглядит аккуратно и свежо. Расположение жилья обеспечивает удобный доступ ко всем необходимым объектам инфраструктуры: рядом находятся продуктовые магазины Бристоль, магазин и супермаркет у дома, а также аптечные пункты и парикмахерская. Для образования детей поблизости расположена средняя школа 116.Этот вариант станет отличным выбором для тех, кто ценит спокойствие и уют собственного дома, сочетая при этом доступность всех необходимых удобств неподалеку. Приглашаем вас ознакомиться с квартирой, которая может стать вашим новым любимым домом

Читать полностью

    Для того, чтобы купить однокомнатную квартиру по адресу: Омск, ул. Арктическая, 25, позвоните по телефону +7 (983) 520-98-53. Торопитесь! Объявление №30093658507 о продаже однокомнатной квартиры опубликовано Вчера.

    Позвонить Написать
    3 000 000 Р39 150 $ или 32 950
    Агент
    +7 (983) 520-98-53
    Начать чат с агентом
    Похожие предложения
    1-к кв. Омская область, Омск ул. Химиков, 22Б (27.0 м) - Фото 1
    1-к кв. Омская область, Омск ул. Химиков, 22Б (27.0 м) - Фото 2
    1-комнатная квартира, общая площадь 27м², кухня 14м²

    Чистая продажа Сертифицированное АН Премиум предлагает к продаже уютную 1 ком. Квартиру в районе с хорошо развитой инфраструктурой и отличнейшей транспортной развязкой. Состояниe заxоди и живи. Bся мeбель, бытовая теxникa ocтaётcя. Всё рaбoчее. Улица...
    • 27 м²
    • 1-ком
    • 1/5 эт.
    • кирпичный
    3 000 000 Р
    Агент
    +7 (913) Показать номер
    Посмотреть контакты
    2-к кв. Омская область, Омск ул. 5-я Кордная, 62В (33.7 м) - Фото 1
    2-к кв. Омская область, Омск ул. 5-я Кордная, 62В (33.7 м) - Фото 2
    2-комнатная квартира, общая площадь 33м², жилая 20м², кухня 5м²

    Арт.Ищете бюджетный вариант жилья с удобным расположением? Тогда это предложение для вас Продается 2-комнатная квартира малосемейного типа на 1 этаже 5-этажного кирпичного дома по адресу: 5-я Кордная, 62. в* Высокие потолки (3.44 м) - редкое преимущество...
    • 33 м²
    • 2-ком
    • 1/5 эт.
    • кирпичный
    3 100 000 Р
    Агент
    +7 (913) Показать номер
    Посмотреть контакты
    1-к кв. Омская область, Омск ул. 4-я Линия, 242 (30.8 м) - Фото 1
    1-к кв. Омская область, Омск ул. 4-я Линия, 242 (30.8 м) - Фото 2
    1-комнатная квартира, общая площадь 30м²

    Помещение, площадь: 30.8 кв.м., адрес: Омская область, г Омск, ул 4 Линия, д 242, кв 34, кадастровый номер: 55:36:000000:35402.
    • 30 м²
    • 1-ком
    • 5/5 эт.
    3 084 000 Р
    Агент
    +7 (923) Показать номер
    Посмотреть контакты
    1-к кв. Омская область, Омск пос. Амурский, ул. 4-я Челюскинцев, 117 ... - Фото 1
    1-к кв. Омская область, Омск пос. Амурский, ул. 4-я Челюскинцев, 117 ... - Фото 2
    1-комнатная квартира, общая площадь 31м², жилая 18м², кухня 6м²

    Продаём 1 комнатную квартиру Продаётся уютная, тёплая ,не угловая однокомнатная квартира площадью 31 квадратный метр на четвёртом этаже пятиэтажного панельного дома, расположенного по адресу: город Омск, 4-я улица Челюскинцев, дом 117. Жилая площадь составляет...
    • 31 м²
    • 1-ком
    • 4/5 эт.
    • панельный
    3 070 000 Р
    Агент
    +7 (983) Показать номер
    Посмотреть контакты
    1-к кв. Омская область, Омск пос. Амурский, ул. 4-я Челюскинцев, 117А ... - Фото 1
    1-к кв. Омская область, Омск пос. Амурский, ул. 4-я Челюскинцев, 117А ... - Фото 2
    1-комнатная квартира, общая площадь 31м², жилая 16м², кухня 6м²

    на чистой продаже квартира в районе Амурского рынка, дом отделан сайдингом, рядом детский сад, школа, поликлиника, в квартире тепло, транспорт в любой район города, никто не прописан
    • 31 м²
    • 1-ком
    • 4/6 эт.
    • панельный
    2 900 000 Р
    Агент
    +7 (913) Показать номер
    Посмотреть контакты

    Не нашли подходящего объявления?

    Оставьте заявку, и наши риэлторы подберут квартиру в районе Омска

    (0)