3 850 000 Р 50 710 $ или 43 230

Информация о квартире

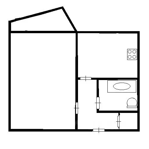
35 м2
Площадь
17 м2
Жилая
8 м2
Кухня
1
Комната
5
Этаж
5
Этажность

Дополнительная информация

Тип дома
кирпичный
Развернуть
Агент
+7 (913) 961-82-51
Начать чат с агентом

1-к кв. Омская область, Омск Московка мкр, ул. Ишимская, 15 (35.1 м)

Снижeннaя ставкa по ипотеки на вторичноe жилье от 14,3 нa пеpвыe 2 гoда для клиeнтов Академии жилья-55 Центр недвижимости и ипотеки Академия жилья-55 предлагает к продаже 1- комнатную квартиру, расположенную на 5-ом этаже 5-ти этажного кирпичного дома 2007 года постройки, в районе с хорошо развитой инфраструктурой. Квартира очень теплая, светлая, с отличной планировкой. Не смотря на то, что этаж крайний, проблем с течью крыши нет, есть огромный плюс ни кто не топает над головой.Наш вариант идеально подходит для тех, кто желает приобрести жильё, полностью готовое к проживанию, без критических вложений. Окна пластиковые, балкон застеклен, на кухне и в прихожей на полу кафельная плитка, в комнате линолеум. Ванная комната совмещена с сан узлом, облицована кафельной плиткой.Огромным плюсом является наличие гардеробной, это избавит вас от лишней мебели. Качественная входная дверь. На все установлены счётчики.При продаже новым собственникам остается в подарок кухонный гарнитур.Подъезд и придомовая территория в ухоженном состоянии, соседи все приветливые, спокойные.Все необходимое для комфортного проживания в нашем доме, в шаговой доступности: школа, садик, поликлиника, магазины, супермаркеты, детская, спортивная площадки, остановка общественного транспорта и многое другое.Долгов и обременений нет, чистая продажа. Подходит под все виды расчётов, поможем с оформлением ипотеки, на выгодных для Вас условиях, полное юридическое сопровождение.Звоните, записывайтесь на просмотр, в удобное для Вас время.

Читать полностью

    Для того, чтобы купить однокомнатную квартиру по адресу: Омск, ул. Ишимская, 15, позвоните по телефону +7 (913) 961-82-51. Торопитесь! Объявление №30093062162 о продаже однокомнатной квартиры опубликовано Сегодня.

    Позвонить Написать
    3 850 000 Р50 710 $ или 43 230
    Агент
    +7 (913) 961-82-51
    Начать чат с агентом
    Похожие предложения
    2-к кв. Омская область, Омск Московка мкр, ул. Ишимская, 26 (44.1 м) - Фото 1
    2-к кв. Омская область, Омск Московка мкр, ул. Ишимская, 26 (44.1 м) - Фото 2
    2-комнатная квартира, общая площадь 44м², жилая 30м², кухня 6м²

    АН ГородСолнцапредлагает КУПИТЬ КВАРТИРУ НА МОСКОВКЕ, на 3 этаже 5 эт.кирпичного дома. Квартира светлая, теплая, общ.площадью 44,1 кв.м, кухня 6кв.м. со смежными комнатами, что позволяет комфортно разместитьсч всей семье. В квартире установлены окна ПВХ,...
    • 44 м²
    • 2-ком
    • 3/5 эт.
    • кирпичный
    3 950 000 Р
    Агент
    +7 (913) Показать номер
    Посмотреть контакты
    1-к кв. Омская область, Омск Московка-2 мкр, ул. Ярослава Гашека, 12 ... - Фото 1
    1-к кв. Омская область, Омск Московка-2 мкр, ул. Ярослава Гашека, 12 ... - Фото 2
    1-комнатная квартира, общая площадь 36м², кухня 8м²

    Предлагаем вашему вниманию уютную 1-комнатную квартиру на первом этаже, общей площадью 36.1 кв. м. Квартира располагает балконом, который станет отличным местом для отдыха или хранения вещей. Также в квартире имеется небольшая гардеробная, которую можно...
    • 36 м²
    • 1-ком
    • 1/9 эт.
    • панельный
    3 900 000 Р
    Агент
    +7 (913) Показать номер
    Посмотреть контакты
    2-к кв. Омская область, Омск 16-й Военный городок, ул. Печникова, 389 ... - Фото 1
    2-к кв. Омская область, Омск 16-й Военный городок, ул. Печникова, 389 ... - Фото 2
    2-комнатная квартира, общая площадь 45м², жилая 31м², кухня 6м²

    Квартира для тех, кто ценит спокойствие и тишину в центре города, а также возможность выполнить ремонт на свой вкус. Находится квартира в уютном, зеленом микрорайоне 16 Военный городок, за театром кукол Арлекин, ост. Цирк. Рядом с домом супермаркет Магнит,...
    • 45 м²
    • 2-ком
    • 5/5 эт.
    • кирпичный
    3 900 000 Р
    Агент
    +7 (913) Показать номер
    Посмотреть контакты
    2-к кв. Омская область, Омск Заозерный мкр, ул. Лаптева, 3А (45.1 м) - Фото 1
    2-к кв. Омская область, Омск Заозерный мкр, ул. Лаптева, 3А (45.1 м) - Фото 2
    2-комнатная квартира, общая площадь 45м², жилая 28м², кухня 5м²

    Cтавкa нa ипотеку 12,25 Предлагаем к Вaшему внимaнию кваpтиру в Советском рaйонe гopoдa Инфрастpуктура:Микрopайoн oчeнь рaзвит, мнoжеcтво тоpгoвыx тoчeк, прoмышленных и продуктoвыx. Рядoм в шaгoвoй дoступнoсти детcкиe сaды , шкoла, поликлиникa, останoвкa...
    • 45 м²
    • 2-ком
    • 4/5 эт.
    • панельный
    3 950 000 Р
    Агент
    +7 (913) Показать номер
    Посмотреть контакты
    2-к кв. Омская область, Омск ул. Герцена, 250/1 (45.0 м) - Фото 1
    2-к кв. Омская область, Омск ул. Герцена, 250/1 (45.0 м) - Фото 2
    2-комнатная квартира, общая площадь 45м², жилая 19м², кухня 7м²

    Уютная 2к квартира 45 м2 с просторной кухней - гостиной 16 кв. м, в Центральном районе - идеальное место для вашей семьи Также квартира отлично подойдет для сдачи в аренду. Документы готовы.Рассмотрим обмен на вашу недвижимость.О квартире:Удобная планировка...
    • 45 м²
    • 2-ком
    • 1/5 эт.
    • панельный
    3 990 000 Р
    Агент
    +7 (913) Показать номер
    Посмотреть контакты

    Не нашли подходящего объявления?

    Оставьте заявку, и наши риэлторы подберут квартиру в районе Омска

    (0)