6 650 000 Р 82 380 $ или 70 890

Информация о квартире

58 м2
Площадь
31 м2
Жилая
9 м2
Кухня
2
Комнаты
4
Этаж
10
Этажность

Дополнительная информация

Тип дома
панельный
Развернуть
Агент
+7 (913) 680-96-42
Начать чат с агентом

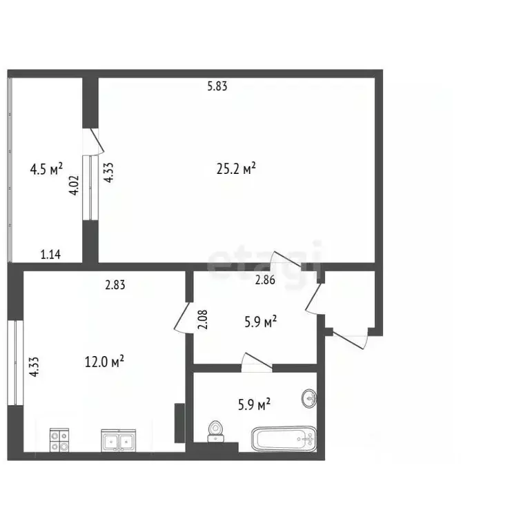
2-к кв. Омская область, Омск ул. Дмитриева, 15/3 (58.5 м)

Продается уютная 2-комнатная квартира площадью 58,5 кв. м в современном панельном доме, построенном в 2007 году. Квартира располагается на 4 этаже из 10, что позволяет наслаждаться комфортным уровнем освещенности и тишиной. Высота потолков составляет 2,7 метра. Жилая площадь — 31,2 кв. м, кухня — 9,3 кв. м, где хватит места для всей семьи. Окна выходят как на улицу, так и во двор, что дает возможность выбрать вид по настроению.В квартире выполнен косметический ремонт: все чисто и аккуратно. Просторная лоджия станет приятным дополнением, где можно организовать зону для отдыха. Санузел раздельный, что удобно для семьи. В квартире есть все необходимое для комфортной жизни: современная мебель и техника. Планировка продуманная, что позволяет рационально использовать пространство.Дом в отличном состоянии, поддерживается в чистоте и порядке. Для удобства жителей есть пассажирский лифт и мусоропровод, а наземная парковка решит вопрос с местом для автомобиля. Рядом с домом находятся школы и детские сады, что идеально для семей с детьми. В шаговой доступности магазины для повседневных покупок. Отличная транспортная доступность: до ближайших остановок общественного транспорта можно дойти за несколько минут.Квартира готова к продаже, юридически чистая, без обременений. Ипотека возможна. Документы готовы к сделке, поэтому покупка пройдет без задержек и неожиданностей.Звоните и записывайтесь на просмотр, чтобы лично оценить все преимущества этой замечательной квартиры. Мы будем рады ответить на ваши вопросы и помочь с оформлением сделки.

Читать полностью

    Для того, чтобы купить двухкомнатную квартиру по адресу: Омск, ул. Дмитриева, 15/3, позвоните по телефону +7 (913) 680-96-42. Торопитесь! Объявление №30092384747 о продаже двухкомнатной квартиры опубликовано 14 марта 2026.

    Позвонить Написать
    6 650 000 Р82 380 $ или 70 890
    Агент
    +7 (913) 680-96-42
    Начать чат с агентом
    Похожие предложения
    2-к кв. Омская область, Омск ул. Дмитриева, 1/4 (52.5 м) - Фото 1
    2-к кв. Омская область, Омск ул. Дмитриева, 1/4 (52.5 м) - Фото 2
    2-комнатная квартира, общая площадь 52м², жилая 32м², кухня 7м²

    Ипотека от 12,25 Продается просторная, светлая квартира в одном из лучших микрорайона Левобережья, идеально подходящая для комфортной жизни Характеристики квартиры:Площадь: 52.5 кв. м Количество комнат: 2Этаж: 7/10Чистый подъезд, ухоженная дворовая...
    • 52 м²
    • 2-ком
    • 7/10 эт.
    • панельный
    6 800 000 Р
    Агент
    +7 (913) Показать номер
    Посмотреть контакты
    1-к кв. Омская область, Омск ул. Дмитриева, 17/1 (43.1 м) - Фото 1
    1-к кв. Омская область, Омск ул. Дмитриева, 17/1 (43.1 м) - Фото 2
    1-комнатная квартира, общая площадь 43м², кухня 10м²

    Предлагаем вашему вниманию уютную 1 комнатную квартиру в 15 минутах от центра. Удобное месторасположение. Развитая инфраструктура, в шаговой доступности магазины, остановка общественного транспорта, школа, детский сад, тихий спокойный двор вдали от шумной...
    • 43 м²
    • 1-ком
    • 7/11 эт.
    • кирпичный
    6 700 000 Р
    Агент
    +7 (913) Показать номер
    Посмотреть контакты
    2-к кв. Омская область, Омск ул. 20 лет РККА, 2 (47.1 м) - Фото 1
    2-к кв. Омская область, Омск ул. 20 лет РККА, 2 (47.1 м) - Фото 2
    2-комнатная квартира, общая площадь 47м², жилая 27м², кухня 8м²

    Внесен аванс Светлая, тёплая, уютная квартира практически в центре города. Комнаты изолированные, просторная кухня, окна ПВХ, лоджия и балкон застеклены ПВХ. Выровнены все стены и потолки, новая проводка, пол ламинат. Заменили радиаторы отопления. Санузел...
    • 47 м²
    • 2-ком
    • 8/9 эт.
    6 700 000 Р
    Агент
    +7 (913) Показать номер
    Посмотреть контакты
    1-к кв. Омская область, Омск ул. Перелета, 18 (42.0 м) - Фото 1
    1-к кв. Омская область, Омск ул. Перелета, 18 (42.0 м) - Фото 2
    1-комнатная квартира, общая площадь 42м², жилая 21м², кухня 12м²

    На чистой продаже 1 комнатная квартира в центре Левобережья с качественным ремонтом. Просторная комната с выходом на застеклённую лоджию, кухня 12 кв.м, санузел совмещён( выложен кафелем, установлена новая сантехника). Окна ПВХ, горизонтальная разводка...
    • 42 м²
    • 1-ком
    • 2/5 эт.
    6 650 000 Р
    Агент
    +7 (913) Показать номер
    Посмотреть контакты
    1-к кв. Омская область, Омск ул. 2-я Дачная, 10 (50.9 м) - Фото 1
    1-к кв. Омская область, Омск ул. 2-я Дачная, 10 (50.9 м) - Фото 2
    1-комнатная квартира, общая площадь 50м², жилая 25м², кухня 12м²

    Предлагаем вашему вниманию уютную квартиру свободную от проживания Очень просторные комната, кухня и прихожая Остаётся кухонный гарнитур Окна ПВХ выходят во двор. Установлены приборы учёта на воду. Электроплита (сниженный тариф за свет). Балкон застеклён...
    • 50 м²
    • 1-ком
    • 5/10 эт.
    • панельный
    6 700 000 Р
    Агент
    +7 (913) Показать номер
    Посмотреть контакты

    Не нашли подходящего объявления?

    Оставьте заявку, и наши риэлторы подберут квартиру в районе Омска

    (0)