Россия, Омская область, Омск, 4-я Транспортная улица, 44
5 500 000 Р 68 240 $ или 58 700

Информация о квартире

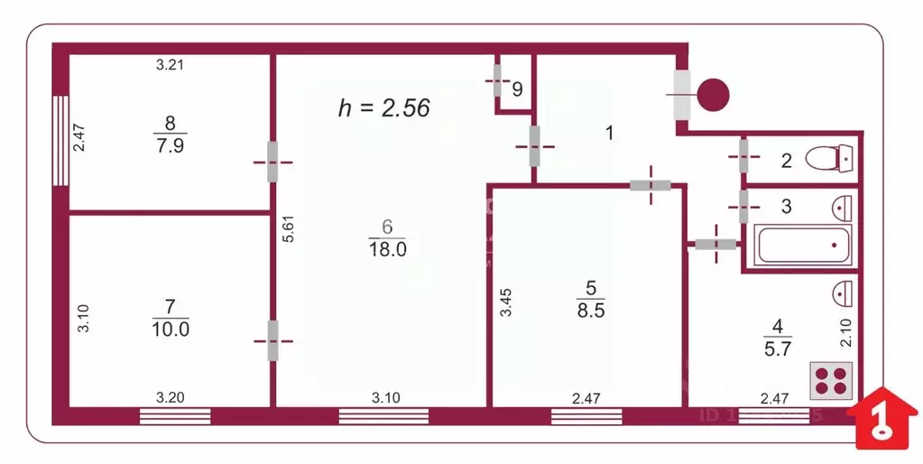
60 м2
Площадь
48 м2
Жилая
7 м2
Кухня
3
Комнаты
7
Этаж
9
Этажность
Развернуть
Агент
+7 (982) 170-77-65
Начать чат с агентом

3-комнатная квартира: Омск, 4-я Транспортная улица, 44 (60 м)

Квартира расположена в районе с развитой социальной и транспортной инфраструктурой. Остановка общественного транспорта находится в пяти минутах ходьбы, а основная маршрутная развязка — непосредственно под окнами, что обеспечивает быструю доступность всех районов города. В шаговой доступности расположены школы №39 и гимназия №43, детские сады №259 и №101, а также новая поликлиника для детей и взрослых. Для активного отдыха вблизи находится спортивный комплекс «Дружба с бассейном, все необходимые магазины и объекты повседневного спроса — в непосредственной близости. Планировка квартиры отличается практичностью: большая застекленная лоджия с выходом из двух комнат увеличивает полезное пространство и обеспечивает дополнительную инсоляцию. В объекте проведен качественный ремонт, установлены пластиковые окна и кондиционер, ванная комната и санузел обновлены, кухня оснащена встроенным гарнитуром. Юридическая чистота сделки гарантируется — квартира не имеет долгов, обременений и находится в собственности двух физических лиц. Это предложение представляет собой оптимальное сочетание выгодного местоположения, готовности к комфортному проживанию и надежности с правовой точки зрения. Код пользователя: 193095Номер в базе:

Читать полностью

    Для того, чтобы купить трехкомнатную квартиру по адресу: Омск, 4-я Транспортная улица, 44, позвоните по телефону +7 (982) 170-77-65. Торопитесь! Объявление №30091747131 о продаже трехкомнатной квартиры опубликовано 2 дня назад.

    Позвонить Написать
    5 500 000 Р68 240 $ или 58 700
    Агент
    +7 (982) 170-77-65
    Начать чат с агентом
    Похожие предложения
    3-комнатная квартира: Омск, 4-я Транспортная улица, 44 (56.6 м) - Фото 1
    3-комнатная квартира: Омск, 4-я Транспортная улица, 44 (56.6 м) - Фото 2
    3-комнатная квартира, общая площадь 56м², жилая 36м², кухня 7м²

    ПРОСТОРНАЯ 3-КОМНАТНАЯ КВАРТИРА В ЖИЛОМ РАЙОНЕ ОМСКА. О квартире: Готовое решение для вашей семьи В продаже квартира с базовым ремонтом и мебелью в районе с развитой инфраструктурой. Документы готовы, продажа чистая, от двух взрослых собственников....
    • 56 м²
    • 3-ком
    • 7/9 эт.
    5 600 000 Р
    Агент
    +7 (909) Показать номер
    Посмотреть контакты
    1-к кв. Омская область, Омск ул. Маяковского, 44 (34.0 м) - Фото 1
    1-к кв. Омская область, Омск ул. Маяковского, 44 (34.0 м) - Фото 2
    1-комнатная квартира, общая площадь 34м², жилая 17м², кухня 7м²

    Продаю 1 комн. в центральной части города Омска. Уютная и очень теплая в доме из настоящего кирпича Просторная комната с выходом на балкон и нишей под спальное место. Сделан качественный, косметический ремонт с заменой окон , ламината . Кухня - миниатюрная...
    • 34 м²
    • 1-ком
    • 2/9 эт.
    • кирпичный
    5 500 000 Р
    Агент
    +7 (981) Показать номер
    Посмотреть контакты
    3-к кв. Омская область, Омск Заозерный мкр, ул. Глинки (61.0 м) - Фото 1
    3-к кв. Омская область, Омск Заозерный мкр, ул. Глинки (61.0 м) - Фото 2
    3-комнатная квартира, общая площадь 61м², жилая 43м², кухня 7м²

    Компания Аркада-Стиль представляет к продаже просторную 3-комнатную квартиру, общей площадью 64 кв.м., расположенную на 3 этаже девятиэтажного дома. В квартире выровнены стены и потолок, заменены трубы и система отопления, установлены качественные входная...
    • 61 м²
    • 3-ком
    • 3/9 эт.
    • панельный
    5 500 000 Р
    Агент
    +7 (913) Показать номер
    Посмотреть контакты
    3-к кв. Омская область, Омск Октябрьская ул., 126 (51.4 м) - Фото 1
    3-к кв. Омская область, Омск Октябрьская ул., 126 (51.4 м) - Фото 2
    3-комнатная квартира, общая площадь 51м², жилая 35м², кухня 6м²

    Код объекта: 1813877. Компания МИАРД Владис предлагает уютную трёхкомнатную квартиру в тихом центре Омска по адресу Октябрьская улица, 126 — идеальное жильё для вашей семьи Две изолированные комнаты и просторное пространство кухни-гостиной создают комфортную...
    • 51 м²
    • 3-ком
    • 2/5 эт.
    • кирпичный
    5 500 000 Р
    Агент
    +7 (913) Показать номер
    Посмотреть контакты
    4-к кв. Омская область, Омск ул. Лукашевича, 8Б (51.0 м) - Фото 1
    4-к кв. Омская область, Омск ул. Лукашевича, 8Б (51.0 м) - Фото 2
    4-комнатная квартира, общая площадь 51м², жилая 36м², кухня 6м²

    Код объекта: 1751571. АН МИАРД Владис предлагает к продаже уютную квартиру, расположенную на 1 этаже 5-ти этажного панельного дома. Выполнен косметический ремонт. Кухонный гарнитур новый, мебель остается по договоренности.Во дворе имеется шлагбаум. Инфраструктура...
    • 51 м²
    • 4-ком
    • 1/5 эт.
    • панельный
    5 500 000 Р
    Агент
    +7 (913) Показать номер
    Посмотреть контакты

    Не нашли подходящего объявления?

    Оставьте заявку, и наши риэлторы подберут квартиру в районе Омска

    (0)