Россия, Омская область, Омск, 4-я Новостроевская улица, 2
3 700 000 Р 45 670 $ или 39 390

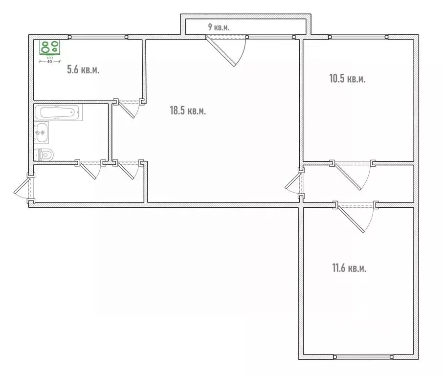
Информация о квартире

54 м2
Площадь
40 м2
Жилая
5 м2
Кухня
3
Комнаты
3
Этаж
3
Этажность

Дополнительная информация

Тип дома
кирпичный
Развернуть
Агент
+7 (913) 961-93-46
Начать чат с агентом

3-к кв. Омская область, Омск Городок Нефтяников мкр, ул. 4-я ...

Пространство для всей семьи. Здесь ваши дети найдут собственные уютные комнаты — две изолированные спальни по 11 м идеально подойдут и для малышей, и для подростков. Гостиная площадью 18,5 м с выходом на балкон создаст место, где вся семья сможет собираться вместе, отдыхать и играть. Благодаря комнатам на две стороны квартира наполнена светом и свежим воздухом, которые так важны для здоровья и настроения. Свобода от суеты и безопасная среда. Квартира выходит окнами во двор, где ваши дети смогут гулять под присмотром. Несмотря на близость к оживлённым улицам, двор тихий — идеальное место для спокойных прогулок и игр. Остановка транспорта в нескольких шагах от дома позволяет быстро доехать в любую часть города, сохраняя баланс между активной городской жизнью и спокойствием семейного очага. Возможность создать дом своей мечты. Площадь 54,6 м ждёт вашего творческого подхода. Ремонт здесь — шанс воплотить все идеи для комфортного и функционального пространства, учитывая ваши нужды и предпочтения. Кладовая поможет организовать хранение детских вещей, игрушек и сезонных предметов, освобождая жилые комнаты для жизни. Все нужное под рукой. Рядом находятся магазины с продуктами, а для развития детей — молодежный центр Химик и театр-студия им. Ермолаевой. Это отличное место для творческого и активного досуга всей семьи, где каждый найдёт что-то интересное. Выбирая этот дом, вы выбираете удобство городской жизни без компромиссов по комфорту. Доступная цена, возможности для семьи. Стоимость этой квартиры сравнима с ценой на однокомнатную в том же районе — это выгодное решение для семьи, которая хочет жить вместе, а не в тесноте. Программа ипотечного кредитования или покупка за наличные открывают путь к собственному пространству, где дети вырастут счастливыми, а родители — спокойными за их будущее.Номер объекта: 1/537351/24613

Читать полностью

    Для того, чтобы купить трехкомнатную квартиру по адресу: Омск, 4-я Новостроевская улица, 2, позвоните по телефону +7 (913) 961-93-46. Торопитесь! Объявление №30091724144 о продаже трехкомнатной квартиры опубликовано Сегодня.

    Позвонить Написать
    3 700 000 Р45 670 $ или 39 390
    Агент
    +7 (913) 961-93-46
    Начать чат с агентом
    Похожие предложения в Омске
    2-к кв. Омская область, Омск пос. Чкаловский, ул. Пархоменко, 2 (44.9 ... - Фото 1
    2-к кв. Омская область, Омск пос. Чкаловский, ул. Пархоменко, 2 (44.9 ... - Фото 2
    2-комнатная квартира, общая площадь 44м², жилая 29м², кухня 6м²

    Квадратные метры остаются надежным способом сохранить и приумножить Ваши сбережения Квартира полностью готовая к проживанию. Вы можете её купить со ставкой от 12.25 Бонусом для новых собственников остается новый кухонный гарнитур. О квартире:Окна ПВХ...
    • 44 м²
    • 2-ком
    • 1/3 эт.
    • кирпичный
    3 800 000 Р
    Агент
    +7 (913) Показать номер
    Посмотреть контакты
    Студия Омская область, Омск ул. Мишина, 2 (26.1 м) - Фото 1
    Студия Омская область, Омск ул. Мишина, 2 (26.1 м) - Фото 2
    студия, общая площадь 26м², кухня 6м²

    На СРОЧНОЙ ПРОДАЖЕ уютная студия 26 кв. м в отличном районе Ищете идеальное жилье для комфортной жизни? Эта светлая и теплая студия ваш лучший выбор Расположенная в районе с развитой инфраструктурой, все необходимое для удобства и благополучия.Преимущества:Простор...
    • 26 м²
    • студия-ком
    • 4/17 эт.
    • кирпичный
    3 650 000 Р
    Агент
    +7 (913) Показать номер
    Посмотреть контакты
    1-к кв. Омская область, Омск ул. Василия Товстухо, 2 (31.0 м) - Фото 1
    1-к кв. Омская область, Омск ул. Василия Товстухо, 2 (31.0 м) - Фото 2
    1-комнатная квартира, общая площадь 31м², жилая 16м², кухня 6м²

    Продается с отличным ремонтом , на втором этаже, не угловая квартира. Балкон застеклен ПВХ и окна, новый кафель в сан. узле, счетчики, ламинат. Кухонный гарнитур остается, встроенный зеркальный шкаф-купе в прихожей. Район с отлично развитой инфраструктурой....
    • 31 м²
    • 1-ком
    • 2/5 эт.
    • панельный
    3 650 000 Р
    Агент
    +7 (913) Показать номер
    Посмотреть контакты
    1-к кв. Омская область, Омск СибНИИСХоз мкр, пер. Башенный, 2 (33.2 м) - Фото 1
    1-к кв. Омская область, Омск СибНИИСХоз мкр, пер. Башенный, 2 (33.2 м) - Фото 2
    1-комнатная квартира, общая площадь 33м², жилая 17м², кухня 6м²

    АН ДОМОФОН предлагает к продаже 1 комнатную квартиру в Советском округе города Омска.О КВАРТИРЕ:Квартира общей площадью 33,2 кв.м., расположенная на 4 этаже 9-ти этажного панельного дома.Квартира уютная, светлая и очень теплая В квартире выполнен хороший...
    • 33 м²
    • 1-ком
    • 4/9 эт.
    • панельный
    3 800 000 Р
    Агент
    +7 (913) Показать номер
    Посмотреть контакты
    2-к кв. Омская область, Омск ул. Николая Кузнецова, 2 (49.9 м) - Фото 1
    2-к кв. Омская область, Омск ул. Николая Кузнецова, 2 (49.9 м) - Фото 2
    2-комнатная квартира, общая площадь 49м², жилая 35м², кухня 6м²

    АВЕСТА-РИЭЛТ предлагает Вашему вниманию отличный вариант квартиры в экологически чистом районе города. Ближайшая остановка транспорта ИФК . Окна ПВХ выходят на восточную сторону. Покупателям остаются шкаф и кухонный гарнитур. Район с развитой инфраструктурой,...
    • 49 м²
    • 2-ком
    • 3/5 эт.
    • кирпичный
    3 700 000 Р
    Агент
    +7 (913) Показать номер
    Посмотреть контакты

    Не нашли подходящего объявления?

    Оставьте заявку, и наши риэлторы подберут квартиру в районе Омска

    (0)