7 000 000 Р 93 330 $ или 79 570

Информация о квартире

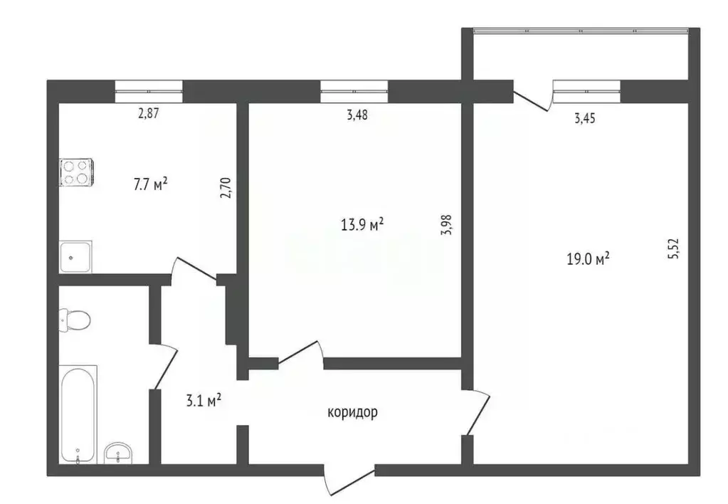
40 м2
Площадь
13 м2
Жилая
15 м2
Кухня
1
Комната
5
Этаж
10
Этажность

Дополнительная информация

Тип дома
монолит
Развернуть
Агент
+7 (913) 670-09-36
Начать чат с агентом

1-к кв. Омская область, Омск Волгоградская ул., 51 (40.2 м)

Однокомнатная квартира в Зеленой Реке с большой кухней.Компания недвижимости Новое Поколение предлагает к продаже 1 комнатную квартиру в новом жилом комплексе Зеленая река .Дом сдан, выдача ключей до 31.12.Строительство по монолитной технологии с применением навесных вентилируемых фасадов и керамогранита, французские балконы, витражное остекление.Планировка квартиры включает в себя: просторную прихожую, большую кухню с выходом на лоджию и изолированную комнату.В квартире выполнена улучшенная черновая отделка. Установлена качественная входная дверь, разводка электрики по всем помещениям, установлены розетки и выключатели.Входные группы 1-го этажа, лифтовые холлы, колясочные, места для хранения велосипедов и другие общественные пространства жилого квартала не только функциональны, но и выполнены в едином стиле.Особое внимание будет уделено благоустройству дворов: на территории квартала Зелёная Река появятся детские игровые площадки, места для отдыха и общения, зелёный амфитеатр, многофункциональные спортивные площадки с тренажёрами, аллеи для прогулок.В жилом квартале Зеленая Река будет построен многофункциональный спортивно-оздоровительный комплекс, в состав которого войдут две ледовые арены, игровые залы для занятий различными видами спорта и бассейн.Инфраструктура района предполагает концепцию Город в городе , остановки общественного транспорта, детскую площадку, школу, детский сад, и все социально-значимые объекты будут в шаговой доступности. Так же памп-парк-это пространство для активного времяпрепровождения, где можно в любое время заниматься спортом, выполняя трюки на самокатах, велосипедах и скейтбордах. Современное покрытие, качественное ограждение и продуманная карта гарантируют безопасный отдых при эксплуатации.Если вы хотите купить новую квартиру и у вас есть старая, то мы можем взять вашу недвижимость, в счет оплаты за новую, по системе trade-in.Мы работаем с ведущими банками, которые могут предложить гибкие условия и специальные предложения для наших покупателей.Все документы готовы к сделке и прошли юридическую экспертизу.Звоните Арт.

Читать полностью

    Для того, чтобы купить однокомнатную квартиру по адресу: Омск, ул. Волгоградская, 51, позвоните по телефону +7 (913) 670-09-36. Торопитесь! Объявление №30091568008 о продаже однокомнатной квартиры опубликовано 09 апреля 2026.

    Позвонить Написать
    7 000 000 Р93 330 $ или 79 570
    Агент
    +7 (913) 670-09-36
    Начать чат с агентом
    Похожие предложения
    2-к кв. Омская область, Омск Волгоградская ул., 42 (52.7 м) - Фото 1
    2-к кв. Омская область, Омск Волгоградская ул., 42 (52.7 м) - Фото 2
    2-комнатная квартира, общая площадь 52м², кухня 12м²

    ПРОДАЕТСЯ Светлая двухкомнатная квартира в современном панельном доме 2012 года постройки на левом берегу. Объект отличается продуманной планировкой: изолированные комнаты обеспечивают приватность, а раздельный санузел добавляет бытового удобства....
    • 52 м²
    • 2-ком
    • 5/10 эт.
    • панельный
    7 000 000 Р
    Агент
    +7 (913) Показать номер
    Посмотреть контакты
    1-к кв. Омская область, Омск ул. Перелета, 21 (43.5 м) - Фото 1
    1-к кв. Омская область, Омск ул. Перелета, 21 (43.5 м) - Фото 2
    1-комнатная квартира, общая площадь 43м², жилая 17м², кухня 10м²

    Арт.Компания Ледон предлагает 1-к квартиру на Левобережья. В квартире выполнен качественный, современный ремонт из материалов высокого качества. При продаже в квартире остается кухонный гарнитур с техникой для приготовления пищи и очищения воздуха....
    • 43 м²
    • 1-ком
    • 1/9 эт.
    • кирпичный
    6 900 000 Р
    Агент
    +7 (913) Показать номер
    Посмотреть контакты
    3-к кв. Омская область, Омск ул. Алексея Полторацкого, 52 (71.5 м) - Фото 1
    3-к кв. Омская область, Омск ул. Алексея Полторацкого, 52 (71.5 м) - Фото 2
    3-комнатная квартира, общая площадь 71м², жилая 42м², кухня 8м²

    Дом 52 по улице А. Полторацкого расположен во второй линии от основной проезжей части, за домами 50, 54 (пересечение с ул. Д. Бедного). Продается трёхкомнатная квартира на четвертом этаже двенадцатиэтажного дома. Дом панельный. Год постройки - 1995....
    • 71 м²
    • 3-ком
    • 4/12 эт.
    • панельный
    6 900 000 Р
    Агент
    +7 (983) Показать номер
    Посмотреть контакты
    Студия Омская область, Омск ул. Перелета, 12к1 (36.0 м) - Фото 1
    Студия Омская область, Омск ул. Перелета, 12к1 (36.0 м) - Фото 2
    студия, общая площадь 36м², жилая 31м²

    Данную квартиру возможно приобрести в ипотеку под ставку от 11,9 Продается уютная квартира - студия с качественным косметическим ремонтом на 6-м этаже 10-ти этажного теплого кирпичного дома. Просторное жилое пространство площадью почти 33 м2,...
    • 36 м²
    • студия-ком
    • 6/10 эт.
    • кирпичный
    6 900 000 Р
    Агент
    +7 (913) Показать номер
    Посмотреть контакты
    4-к кв. Омская область, Омск ул. 4-я Линия, 178 (81.0 м) - Фото 1
    4-к кв. Омская область, Омск ул. 4-я Линия, 178 (81.0 м) - Фото 2
    4-комнатная квартира, общая площадь 81м², жилая 49м², кухня 11м²

    На продаже 4-комнатная квартира расположена на 7-м этаже в 9-ти этажном панельном доме. Все комнаты изолированы, большая лоджия, окна ПВХ. В подъезде ремонт, во дворе имеются детские площадки, много места для парковки. Дом расположен в районе с развитой...
    • 81 м²
    • 4-ком
    • 7/9 эт.
    • панельный
    7 000 000 Р
    Агент
    +7 (983) Показать номер
    Посмотреть контакты

    Не нашли подходящего объявления?

    Оставьте заявку, и наши риэлторы подберут квартиру в районе Омска

    (0)