Россия, Омская область, Омск, ул. 21-я Амурская, 75
7 550 000 Р 93 670 $ или 80 580

Информация о квартире

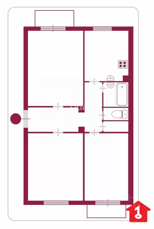
80 м2
Площадь
60 м2
Жилая
12 м2
Кухня
3
Комнаты
1
Этаж
5
Этажность
Развернуть
Агент
+7 (913) 651-27-45
Начать чат с агентом

3-к кв. Омская область, Омск ул. 21-я Амурская, 75 (80.0 м)

Предлагаем к продаже прекрасную трехкомнатную квартиру, расположенную в 10 минутах езды от центра города Омска, на улице 21-я Амурская. Это идеальный вариант для тех, кто ищет комфортное и просторное жилье.Площадь квартиры составляет 80 кв.м. Благодаря изолированной планировке, каждому члену семьи будет предоставлена максимальная приватность и комфорт. Планировка квартиры включает в себя просторную гостиную, две уютные спальни, большую кухню и раздельный санузел.Жилая площадь квартиры составляет 60 кв.м, Кухня, площадью 12 кв.м, оборудована всем необходимым для комфортной готовки и ужинов в кругу семьи и друзей. Для ремонта ванной комнаты и санузла приобретены все строительные материалы, кафель и современная сантехника.. Есть дизайн-проект (см. фото)Эта квартира находится на первом этаже, что обеспечивает удобство и легкий доступ без лишних усилий. В квартире новым владельцам остается современная кухня со встроенной техникой. Остальная мебель по договоренности.Дом построен в 2022 году. Есть открытая парковка во дворе, что позволит вам всегда иметь доступ к своему автомобилю в любое время дня или ночи.Ухоженная придомовая территория. Во дворе большая детская площадка, зеленые насаждения. Квартира располагается в районе с идеально развитой социально-бытовой и транспортной инфраструктурой. Все необходимое для комфортного проживания современного человека находится в шаговой доступности: множество магазинов, отделения банков, аптеки, парикмахерские, школы, детские сады, остановка общественного транспорта - рядом с домом.Долгов и обременений нет. Два взрослых собственника.Вы можете купить этот объект через ипотеку, в том числе военную, а также через любые виды сертификатов.Наши партнеры - ведущие банки Омска, поэтому мы оформляем ипотеку по сниженным ставкам сразу в нескольких банках, что значительно экономит ваше время и деньги.Гарантируем безопасное и комфортное сопровождение сделки.Вопрос по цене обсуждается.Звоните, покажем в удобное для Вас время

Читать полностью

    Для того, чтобы купить трехкомнатную квартиру по адресу: Омск, ул. 21-я Амурская, 75, позвоните по телефону +7 (913) 651-27-45. Торопитесь! Объявление №30091452834 о продаже трехкомнатной квартиры опубликовано Вчера.

    Позвонить Написать
    7 550 000 Р93 670 $ или 80 580
    Агент
    +7 (913) 651-27-45
    Начать чат с агентом
    Похожие предложения
    3-к кв. Омская область, Омск Заозерный мкр, просп. Менделеева, 21/2 ... - Фото 1
    3-к кв. Омская область, Омск Заозерный мкр, просп. Менделеева, 21/2 ... - Фото 2
    3-комнатная квартира, общая площадь 79м², жилая 52м², кухня 7м²

    Агентство недвижимости Домофон, предлагает к продаже, очень хорошую 3-х комнатную квартиру Омской серии, в микрорайоне Заозерный.Большая, светлая, теплая и уютная квартира в кирпичном доме на первом этаже. Вас без сомнения порадует просторная кухня-гостиная,...
    • 79 м²
    • 3-ком
    • 1/5 эт.
    • кирпичный
    7 500 000 Р
    Агент
    +7 (913) Показать номер
    Посмотреть контакты
    3-к кв. Омская область, Омск ул. Чехова, 3 (55.8 м) - Фото 1
    3-к кв. Омская область, Омск ул. Чехова, 3 (55.8 м) - Фото 2
    3-комнатная квартира, общая площадь 55м², кухня 6м²

    Просторная квартира с качественным ремонтом расположена в центре города, что обеспечивает отличную транспортную доступность и развитую инфраструктуру. Преимуществом объекта является удачная перепланировка, в результате которой образовалась большая совмещенная...
    • 55 м²
    • 3-ком
    • 4/9 эт.
    • панельный
    7 670 000 Р
    Агент
    +7 (913) Показать номер
    Посмотреть контакты
    3-к кв. Омская область, Омск Городок Нефтяников мкр, ул. Малунцева, 5А ... - Фото 1
    3-к кв. Омская область, Омск Городок Нефтяников мкр, ул. Малунцева, 5А ... - Фото 2
    3-комнатная квартира, общая площадь 72м², жилая 49м², кухня 8м²

    Код объекта: 1895252. Продаётся уютная трёхкомнатная квартира Адрес: город Нефтяников, ул. Малунцева, д. 5А Расположение:• Тёплый полнометражный кирпичный дом, 3 этаж, не угловая.• Просторные комнаты, светлая атмосфера, идеальный вариант для семьи.•...
    • 72 м²
    • 3-ком
    • 3/4 эт.
    • кирпичный
    7 500 000 Р
    Агент
    +7 (913) Показать номер
    Посмотреть контакты
    3-к кв. Омская область, Омск Солнечный мкр, ул. Комкова, 8 (85.0 м) - Фото 1
    3-к кв. Омская область, Омск Солнечный мкр, ул. Комкова, 8 (85.0 м) - Фото 2
    3-комнатная квартира, общая площадь 85м², жилая 70м², кухня 12м²

    На срочной продаже.Квартира по цене двух комнатной квартиры.Продаем уютную ,замечательную квартиру полностью с ремонтом с индивидуальным проектом и всей необходимой встроенной мебелью и бытовой техникой для жизни.Сделан ремонт с использованием современных...
    • 85 м²
    • 3-ком
    • 3/9 эт.
    7 590 000 Р
    Агент
    +7 (983) Показать номер
    Посмотреть контакты
    3-к кв. Омская область, Омск просп. Мира, 64 (83.8 м) - Фото 1
    3-к кв. Омская область, Омск просп. Мира, 64 (83.8 м) - Фото 2
    3-комнатная квартира, общая площадь 83м², жилая 48м², кухня 12м²

    Арт.АН Ледон предлагает к продаже полнометражную 3х к. квартиру 83,8 кв.м. Высота потолков составляет 2,95 метра. В квартире выровнены потолки, стены, заменены все коммуникации.Квартира с планировкой на две стороны (запад-восток), внутренний двор и проспект...
    • 83 м²
    • 3-ком
    • 2/4 эт.
    • кирпичный
    7 600 000 Р
    Агент
    +7 (983) Показать номер
    Посмотреть контакты

    Не нашли подходящего объявления?

    Оставьте заявку, и наши риэлторы подберут квартиру в районе Омска

    (0)