2 600 000 Р 32 010 $ или 27 710

Информация о квартире

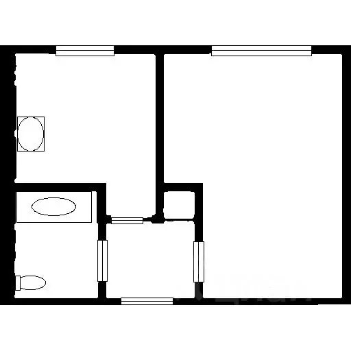
30 м2
Площадь
18 м2
Жилая
6 м2
Кухня
1
Комната
4
Этаж
5
Этажность

Дополнительная информация

Тип дома
кирпичный
Развернуть
Агент
+7 (913) 610-08-98
Начать чат с агентом

1-к кв. Омская область, Омск просп. Мира, 163Б (30.0 м)

Предлагаем вашему вниманию на чистой продаже хороший вариант 1-комнатной квартиры в тихом, комфортном для проживания районе города. Квартира очень светлая, теплая. Есть застекленный балкон. На кухне окно ПВХ, пол- линолеум, сантехника в хорошем состоянии, есть счетчики. В квартире остается кухонный гарнитур и другая мебель. Очень ухоженный дом, во дворе детская площадка, вокруг много зеленых насаждений. В шаговой доступности от дома много магазинов, школа, детские сады, салоны красоты, аптеки, остановка транспорта.

Читать полностью

    Для того, чтобы купить однокомнатную квартиру по адресу: Омск, Мира пр-кт., 163Б, позвоните по телефону +7 (913) 610-08-98. Торопитесь! Объявление №30091349533 о продаже однокомнатной квартиры опубликовано 07 ноября 2025.

    Позвонить Написать
    2 600 000 Р32 010 $ или 27 710
    Агент
    +7 (913) 610-08-98
    Начать чат с агентом
    Похожие предложения
    1-к кв. Омская область, Омск просп. Мира, 165Г (29.0 м) - Фото 1
    1-к кв. Омская область, Омск просп. Мира, 165Г (29.0 м) - Фото 2
    1-комнатная квартира, общая площадь 29м², жилая 17м², кухня 5м²

    Предлагаем к продаже 1 комнатную квартиру с косметическим ремонтом.Кирпичный дом 1976 г постройки в САО г. Омска рядом студенческий городок институты, Советский Парк.Вся инфраструктура для вечерних прогулок и утренних пробежекВ квартире есть все необходимое...
    • 29 м²
    • 1-ком
    • 1/5 эт.
    2 600 000 Р
    Агент
    +7 (983) Показать номер
    Посмотреть контакты
    1-комнатная квартира: Омск, проспект Мира, 165Г (29 м) - Фото 1
    1-комнатная квартира: Омск, проспект Мира, 165Г (29 м) - Фото 2
    1-комнатная квартира, общая площадь 29м², жилая 17м², кухня 5м²

    Предлагаем к продаже 1 комнатную квартиру с косметическим ремонтом.Кирпичный дом 1976 г постройки в САО г. Омска рядом студенческий городок институты, Советский Парк.Вся инфраструктура для вечерних прогулок и утренних пробежекВ квартире есть все необходимое...
    • 29 м²
    • 1-ком
    • 1/5 эт.
    2 600 000 Р
    Агент
    +7 (902) Показать номер
    Посмотреть контакты
    1-к кв. Омская область, Омск ул. 4-я Линия, 238 (32.3 м) - Фото 1
    1-к кв. Омская область, Омск ул. 4-я Линия, 238 (32.3 м) - Фото 2
    1-комнатная квартира, общая площадь 32м², жилая 18м², кухня 6м²

    Теплая квартира с балконом, в кирпичном доме. Требуется ремонт. Свободна. Чистая продажа.Без обременений.. Возможна продажа по ипотеке и с использованием сертификатаНомер объекта: 1/546104/1286
    • 32 м²
    • 1-ком
    • 2/4 эт.
    • кирпичный
    2 650 000 Р
    Агент
    +7 (913) Показать номер
    Посмотреть контакты
    3-к кв. Омская область, Омск Крутая Горка мкр, ул. Российская, 9 (41.4 ... - Фото 1
    3-к кв. Омская область, Омск Крутая Горка мкр, ул. Российская, 9 (41.4 ... - Фото 2
    3-комнатная квартира, общая площадь 41м², кухня 6м²

    Предлагаю к покупке Светлую, Тёплую 3-комнатную квартиру в экологически чистом, живописном месте мкрн. Крутая горка Квартира расположена на удобном 2м этаже, с видом на пргулочную улицу В квартире 2 отдельные спальни с выходом в общую кухню-гостинную,...
    • 41 м²
    • 3-ком
    • 2/3 эт.
    • кирпичный
    2 650 000 Р
    Агент
    +7 (983) Показать номер
    Посмотреть контакты
    1-к кв. Омская область, Омск Краснознаменная ул., 2В (30.9 м) - Фото 1
    1-к кв. Омская область, Омск Краснознаменная ул., 2В (30.9 м) - Фото 2
    1-комнатная квартира, общая площадь 30м², жилая 18м², кухня 6м²

    Продам 1 к. кв. - студию, на 1 эт/5 эт. дома. Окна ПВХ, счётчики на газ, гхв, металлическая дверь. Санузел совмещен. Дом расположен в отличном месте микрорайона Первокирпичный. В пристройке дома магазины. В соседних домах аптека, Магнит, промтоварный,...
    • 30 м²
    • 1-ком
    • 1/5 эт.
    2 610 000 Р
    Агент
    +7 (913) Показать номер
    Посмотреть контакты

    Не нашли подходящего объявления?

    Оставьте заявку, и наши риэлторы подберут квартиру в районе Омска

    (0)