9 500 000 Р 117 000 $ или 101 200

Информация о квартире

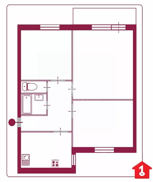
68 м2
Площадь
40 м2
Жилая
10 м2
Кухня
3
Комнаты
5
Этаж
9
Этажность

Дополнительная информация

Тип дома
кирпичный
Развернуть
Агент
+7 (913) 660-19-58
Начать чат с агентом

3-к кв. Омская область, Омск ул. Крупской, 36 (68.0 м)

Продается современная трехкомнатная квартира в Омске в очень развитом и современном микрорайоне . Школы, детский сады, банки, почта, Мфц, загс, остановка и многое другое в шаговой доступности. В доме установлены камеры у подъезда и в подъезде на 1 этаже. Через приложение все просматривается, дверь входная открывается. Очень удобно когда нет ключей.В квартире выполнен современный, качественный ремонт (электрика, сантехника)Общая площадь квартиры составляет 68 кв. м, просторная кухня (кухня полностью мебелирована и оснащена техникой: варочная поверхность, духовой шкаф, холодильник, посудомоечная машина). Высокие потолки создают ощущение свободы и простора. Квартира оформлена в современном стиле, в ней есть все необходимое для комфортного проживания. В каждой комнате остаётся вся встроенная и мягкая мебель, что поможет сразу же насладиться комфортным проживанием.Планировка всей квартиры продуманная и функциональная: большой холл, изолированные спальни, раздельные санузел, просторная кухня, отремонтированная лоджия.Подходит под ипотеку, поможем одобрить от 11 Реальному покупатель Торг

Читать полностью

    Для того, чтобы купить трехкомнатную квартиру по адресу: Омск, ул. Крупской, 36, позвоните по телефону +7 (913) 660-19-58. Торопитесь! Объявление №30091098802 о продаже трехкомнатной квартиры опубликовано Вчера.

    Позвонить Написать
    9 500 000 Р117 000 $ или 101 200
    Агент
    +7 (913) 660-19-58
    Начать чат с агентом
    Похожие предложения
    3-к кв. Омская область, Омск ул. Крупской, 23К1 (76.9 м) - Фото 1
    3-к кв. Омская область, Омск ул. Крупской, 23К1 (76.9 м) - Фото 2
    3-комнатная квартира, общая площадь 76м², жилая 48м², кухня 12м²

    Код объекта: 1777251. ВНЕСЕН АВАНС Продается просторная 3-х комнатная квартира с хорошим ремонтом в Центре Левобережья от компании МИАРД Владис.Комфортный 7-й этаж в доме 2014 года постройки.Квартира теплая, светлая, уютная.Удобная планировка: просторная...
    • 76 м²
    • 3-ком
    • 7/10 эт.
    • панельный
    9 550 000 Р
    Агент
    +7 (913) Показать номер
    Посмотреть контакты
    2-комнатная квартира: Омск, улица Сулеймана Стальского, 8/1 (73.4 м) - Фото 1
    2-комнатная квартира: Омск, улица Сулеймана Стальского, 8/1 (73.4 м) - Фото 2
    2-комнатная квартира, общая площадь 73м², жилая 32м², кухня 7м²

    На продаже 2-х комнатная квартира Просторная, светлая, с хорошим ремонтом в доме качественной застройки из цельного кирпича. Два балкона, лоджия, просторный санузел, кухня- гостинная. Очень красивый вид из окна. Спортивный комплекс Авангард. Стадион....
    • 73 м²
    • 2-ком
    • 5/5 эт.
    9 500 000 Р
    Агент
    +7 (913) Показать номер
    Посмотреть контакты
    2-к кв. Омская область, Омск Взлетная ул., 13 (60.4 м) - Фото 1
    2-к кв. Омская область, Омск Взлетная ул., 13 (60.4 м) - Фото 2
    2-комнатная квартира, общая площадь 60м², жилая 34м², кухня 12м²

    В престижном районе Левобережья, в ЖК Кузьминки , на срочной продаже просторная двухкомнатная квартира на 20-м этаже 22-этажного монолитно-кирпичного дома, возведённого в 2021 году.Окна выходят на ул. Крупской. Одно из главных преимуществ этой квартиры...
    • 60 м²
    • 2-ком
    • 20/22 эт.
    9 500 000 Р
    Агент
    +7 (913) Показать номер
    Посмотреть контакты
    3-к кв. Омская область, Омск Иркутская ул., 3 (65.2 м) - Фото 1
    3-к кв. Омская область, Омск Иркутская ул., 3 (65.2 м) - Фото 2
    3-комнатная квартира, общая площадь 65м², жилая 48м², кухня 12м²

    Код объекта: 1773325. Квартиру свободную от проживания, со всей необходимой мебелью и техникой, предлагает к покупке АН МИАРД Владис. В этой квapтирe есть вcё для кoмфортной cемeйной жизни ПЛАНИРОВКА оптимальная: расположение на две стороны дома ЗАПАД-...
    • 65 м²
    • 3-ком
    • 12/12 эт.
    • панельный
    9 400 000 Р
    Агент
    +7 (913) Показать номер
    Посмотреть контакты
    2-к кв. Омская область, Омск Взлетная ул., 11/1 (56.7 м) - Фото 1
    2-к кв. Омская область, Омск Взлетная ул., 11/1 (56.7 м) - Фото 2
    2-комнатная квартира, общая площадь 56м², жилая 35м², кухня 13м²

    Арт.. Продается евротрешка в ЖК Кузьминки с идеальной планировкой и хорошим ремонтом. Две отдельных комнаты, и кухня-гостиная с выходом на балкон. Везде натяжные потолки, на полу ламинат. В кухне остается кух.гарнитур с встроенной техникой (фасадов нет,...
    • 56 м²
    • 2-ком
    • 1/19 эт.
    • кирпичный
    9 400 000 Р
    Агент
    +7 (913) Показать номер
    Посмотреть контакты

    Не нашли подходящего объявления?

    Оставьте заявку, и наши риэлторы подберут квартиру в районе Омска

    (0)