Россия, Омская область, Омск, бул. Архитекторов, 14/1
5 850 000 Р 72 320 $ или 62 640

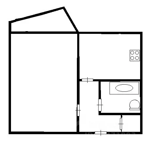
Информация о квартире

43 м2
Площадь
18 м2
Жилая
12 м2
Кухня
1
Комната
7
Этаж
10
Этажность

Дополнительная информация

Тип дома
кирпичный
Развернуть
Агент
+7 (913) 610-76-02
Начать чат с агентом

1-к кв. Омская область, Омск бул. Архитекторов, 14/1 (43.2 м)

Внесён авансГод постройки дома 2008. Продается 1-комнатная квартира на 7 этаже 10-этажного кирпичного дома. Общая площадь 43,2 кв. м. Установлены окна ПВХ, натяжные потолки, на полу ламинат, в прихожей и кухне - плитка. Большая кухня - 12,2 кв с выходом на лоджию. Застекленная лоджия (2,3 кв м).При продаже остается стиральная машина, холодильник, диван, комод, кухонный гарнитур. В прихожей большой шкаф-купе с зеркальной дверью. Квартира не угловая.Совмещенный санузел, установлены приборы учета.Управляющая компания ООО УК Кристалл. Двор чистый, уютный. Детская площадка ограждена забором. Тротуары от междворного подъезда ограждены метаалическим забором. На придомовой территории размещена аллея с зелёными многолетними хвойными деревьями и кустарниками.В 2025 году произведена реконструкция бульвара Архитекторов и открытие нового общественного пространства.В микрорайоне расположены все объекты, необходимые для удобной и комфортной жизни в городе: почта, аптеки, предприятия бытовых услуг, кафе Престиж, гипермаркет Магнит, Гипер Лента, G-Drive Арена, Гипермаркет DNS, в нескольких остановках Мега, Леруа Мерлен, Фестиваль, Континент, детский Монтессори-центр Первые шаги, Салон красоты Зефир, детский бассейн BabyBoom, академия единоборств Budokan, школа 7, 33, 42, 135, 139, детский сад 100, 127, 245, 341, Карапузик, 359, .Остановки Поворотная и Тополиный в 2 минутах от дома. Подходит под ипотеку. Гарантия безопасности сделки. Полное юридическое сопровождение сделки.

Читать полностью

    Для того, чтобы купить однокомнатную квартиру по адресу: Омск, бул. Архитекторов, 14/1, позвоните по телефону +7 (913) 610-76-02. Торопитесь! Объявление №30090703300 о продаже однокомнатной квартиры опубликовано Вчера.

    Позвонить Написать
    5 850 000 Р72 320 $ или 62 640
    Агент
    +7 (913) 610-76-02
    Начать чат с агентом
    Похожие предложения
    1-к кв. Омская область, Омск ул. 70 лет Октября, 22 (37.6 м) - Фото 1
    1-к кв. Омская область, Омск ул. 70 лет Октября, 22 (37.6 м) - Фото 2
    1-комнатная квартира, общая площадь 37м², жилая 19м², кухня 8м²

    Центр недвижимости и ипотеки ТандемТ предлагает вашему вниманию 1-ком квартиру на Левом берегу (район Фестиваля).Характеристики квартиры: Просторная, очень светлая и уютная квартира с качественной отделкой. Практичная планировка с отгороженным тамбуром...
    • 37 м²
    • 1-ком
    • 8/9 эт.
    • панельный
    5 800 000 Р
    Агент
    +7 (913) Показать номер
    Посмотреть контакты
    2-к кв. Омская область, Омск Краснознаменная ул., 26к4 (52.4 м) - Фото 1
    2-к кв. Омская область, Омск Краснознаменная ул., 26к4 (52.4 м) - Фото 2
    2-комнатная квартира, общая площадь 52м², жилая 34м², кухня 9м²

    Продается уютная 2-комнатная квартира в монолитном доме, расположенная по адресу: Россия, Омск, Краснознамённая улица, 26к4. Квартира находится на 3 этаже 10-этажного дома, построенного в 2007 году. Общая площадь составляет 52.4 кв. м, жилая площадь —...
    • 52 м²
    • 2-ком
    • 3/10 эт.
    • монолит
    5 850 000 Р
    Агент
    +7 (913) Показать номер
    Посмотреть контакты
    2-к кв. Омская область, Омск Омская ул., 160 (53.2 м) - Фото 1
    2-к кв. Омская область, Омск Омская ул., 160 (53.2 м) - Фото 2
    2-комнатная квартира, общая площадь 53м², жилая 33м², кухня 8м²

    Чистая продажа - нам ничего взамен покупать не надо Быстрый выход на сделку Ипотека от 13,99 Продается уютная двухкомнатная квартира для молодых семей с детьми, и не только Предлагаем вашему вниманию светлую двухкомнатную квартиру с дизайнерским...
    • 53 м²
    • 2-ком
    • 1/9 эт.
    • панельный
    5 800 000 Р
    Агент
    +7 (913) Показать номер
    Посмотреть контакты
    2-к кв. Омская область, Омск ул. Малиновского, 16к2 (60.0 м) - Фото 1
    2-к кв. Омская область, Омск ул. Малиновского, 16к2 (60.0 м) - Фото 2
    2-комнатная квартира, общая площадь 60м², жилая 29м², кухня 10м²

    Чистая продажа-2комнатная квартира 60 кв.м. в новом кирпичном доме, в современном микрорайоне на улице Малиновского по самой низкой стоимости за кв.метр среди новостроек.Квартира свободной планировки с удобным планированием комнат.Светлая, солнечная.В...
    • 60 м²
    • 2-ком
    • 5/9 эт.
    • кирпичный
    5 800 000 Р
    Агент
    +7 (913) Показать номер
    Посмотреть контакты
    4-к кв. Омская область, Омск ул. Рокоссовского, 30 (80.6 м) - Фото 1
    4-к кв. Омская область, Омск ул. Рокоссовского, 30 (80.6 м) - Фото 2
    4-комнатная квартира, общая площадь 80м², жилая 50м², кухня 10м²

    **Продаётся уютная квартира в Омске ** **Вторичное жильё**, проверенное временем и заботой предыдущих владельцев **Расположение:** город Омск - комфортный район с развитой инфраструктурой и транспортной доступностью. **Общая площадь:** 80.6 кв.м.,...
    • 80 м²
    • 4-ком
    • 1/10 эт.
    5 800 000 Р
    Агент
    +7 (983) Показать номер
    Посмотреть контакты

    Не нашли подходящего объявления?

    Оставьте заявку, и наши риэлторы подберут квартиру в районе Омска

    (0)