Россия, Омская область, Омск, улица Ярослава Гашека, 5/2
4 400 000 Р 56 660 $ или 47 820

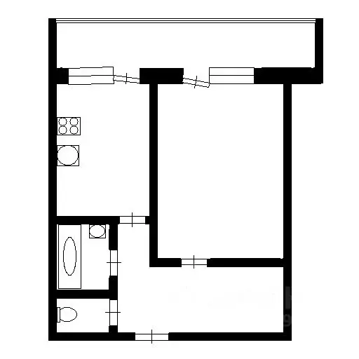
Информация о квартире

49 м2
Площадь
33 м2
Жилая
9 м2
Кухня
3
Комнаты
9
Этаж
9
Этажность

Дополнительная информация

Тип дома
панельный
Развернуть
Агент
+7 (913) 602-98-99
Начать чат с агентом

3-к кв. Омская область, Омск Московка-2 мкр, ул. Ярослава Гашека, 5/2 ...

Арт.. Успей купить 3-х комнатную квартиру по цене 1-комнатной Агентство недвижимости Роспрофи предлагает к продаже теплую, светлую 3-х комнатную квартиру расположенную на Новой Московке в районе с развитой инфраструктурой .Квартира продается со всей мебелью, можно сразу переехать и жить.Квартира с косметическим ремонтом.Ванная комната и туалет облицованы керамической плиткой, заменены все трубы на металлопластиковые.Лоджия застеклена, установлена новая крыша с козырьком.Окна комнат выходят на обе стороны дома.Установлены приборы учета на электричество ,воду и газ.Тамбур на две квартиры, установлена металлическая дверь.Есть технический этаж. Подъезд чистый, ремонт закончили летом 2025 г.Провели замену входной двери в подъезд, установили новую домофонную систему.Двор ухоженный.Перед домом хорошая детская и спортивная площадки.Очень удачное расположение дома с развитой инфраструктурой: рядом с домом детский сад и школа 99 с углубленным изучением отдельных предметов.Напротив дома сквер Территория детства, все сетевые супермаркеты, аптеки, больница и другие объекты социального назначения.Перед домом находится большая парковка, парковочных мест всегда в достаточном количестве.Удобная транспортная развязка, благодаря чему легко уехать в любой район города. Остановка общественного транспорта Универсам находится в 300 м от дома. Чистая продажа. Гарантируем безопасное и комфортное сопровождение сделки.При необходимости поможем в оформлении ипотеки с дисконтом от банков партнеров.Понравилась квартира - звоните и записывайтесь на просмотр прямо сейчас

Читать полностью

    Для того, чтобы купить трехкомнатную квартиру по адресу: Омск, улица Ярослава Гашека, 5/2, позвоните по телефону +7 (913) 602-98-99. Торопитесь! Объявление №30089701257 о продаже трехкомнатной квартиры опубликовано Сегодня.

    Позвонить Написать
    4 400 000 Р56 660 $ или 47 820
    Агент
    +7 (913) 602-98-99
    Начать чат с агентом
    Похожие предложения
    2-к кв. Омская область, Омск ул. Демьяна Бедного, 67 (49.9 м) - Фото 1
    2-к кв. Омская область, Омск ул. Демьяна Бедного, 67 (49.9 м) - Фото 2
    2-комнатная квартира, общая площадь 49м², кухня 8м²

    Чистая продажа Квартира с отличной планировкой в кирпичном доме. Очень теплая. Окна ПВХ, выходят на две стороны дома. остекленная лоджия ПВХ с внутренней отделкой и встроенным шкафом. Комнаты изолированные, раздельный санузел, кладовая, вместительный...
    • 49 м²
    • 2-ком
    • 5/5 эт.
    • кирпичный
    4 400 000 Р
    Агент
    +7 (913) Показать номер
    Посмотреть контакты
    2-к кв. Омская область, Омск 6-й мкр, бул. Заречный, 2 (41.0 м) - Фото 1
    2-к кв. Омская область, Омск 6-й мкр, бул. Заречный, 2 (41.0 м) - Фото 2
    2-комнатная квартира, общая площадь 41м², жилая 24м², кухня 5м²

    На продаже 2 комнатная квартира в КАО. Теплая, светлая, уютная квартира полностью готова для проживания. Комнаты изолированы, окна выходят во двор. В квартире сделан ремонт. окна ПВХ, межкомнатные двери из массива дерева, установлены приборы учета, потолки...
    • 41 м²
    • 2-ком
    • 2/9 эт.
    • панельный
    4 300 000 Р
    Агент
    +7 (983) Показать номер
    Посмотреть контакты
    3-к кв. Омская область, Омск Городок Нефтяников мкр, ул. Энтузиастов, ... - Фото 1
    3-к кв. Омская область, Омск Городок Нефтяников мкр, ул. Энтузиастов, ... - Фото 2
    3-комнатная квартира, общая площадь 49м², кухня 17м²

    Трехкомнатная квартира 49,9 кв.м. Балкон застеклен. Четвертый этаж в пятиэтажном панельном доме 1970 года постройки. Две изолированные спальные комнаты по 8 кв.м. и кухня-студия 17 кв.м. Есть еще одна маленькая комната с окном 5,6 кв,м. Район с развитой...
    • 49 м²
    • 3-ком
    • 4/5 эт.
    • панельный
    4 300 000 Р
    Агент
    +7 (913) Показать номер
    Посмотреть контакты
    2-к кв. Омская область, Омск Светловская ул., 14 (38.1 м) - Фото 1
    2-к кв. Омская область, Омск Светловская ул., 14 (38.1 м) - Фото 2
    2-комнатная квартира, общая площадь 38м², жилая 25м², кухня 5м²

    Кирпичный дом 2015 года постройки. Комфортный 8 этаж 9 этажного жилого дома. Площадь квартиры 38,7 кв.м. плюс балкон. Квартира имеет продуманную компактную планировку (нет бесполезной площади). Спальная комната с французским окном в пол и выходом...
    • 38 м²
    • 2-ком
    • 8/9 эт.
    • кирпичный
    4 440 000 Р
    Агент
    +7 (913) Показать номер
    Посмотреть контакты
    2-к кв. Омская область, Омск Городок Нефтяников мкр, ул. 22 Апреля, 6 ... - Фото 1
    2-к кв. Омская область, Омск Городок Нефтяников мкр, ул. 22 Апреля, 6 ... - Фото 2
    2-комнатная квартира, общая площадь 41м², жилая 28м², кухня 7м²

    Продаётся уютная двухкомнатная квартира площадью 41.6 квадратных метров на первом этаже пятиэтажного панельного дома, расположенного по адресу: город Омск, микрорайон Городок Нефтяников, улица 22 Апреля, дом 6. Дом построен в 1966 году и окружён развитой...
    • 41 м²
    • 2-ком
    • 1/5 эт.
    • панельный
    4 399 000 Р
    Агент
    +7 (983) Показать номер
    Посмотреть контакты

    Не нашли подходящего объявления?

    Оставьте заявку, и наши риэлторы подберут квартиру в районе Омска

    (0)