6 200 000 Р 80 900 $ или 68 760

Информация о квартире

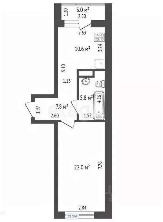
35 м2
Площадь
16 м2
Жилая
10 м2
Кухня
1
Комната
6
Этаж
14
Этажность

Дополнительная информация

Тип дома
кирпичный
Развернуть
Агент
+7 (983) 112-56-19
Начать чат с агентом

1-к кв. Омская область, Омск ул. Крупской, 14 (35.0 м)

Год постройки дома 2015. Застройщик - Трест 4. Продается однокомнатная квартира на шестом этаже 14-этажного кирпичного дома.Общая площадь квартиры 35 кв. м. Изолированная спальня. Есть гардеробная комната. На этаже большая кладовая комната.Кухня с кухонным гарнитуром. Совмещенный санузел.Установлены окна ПВХ. Застекленная лоджия. Двор чистый, уютный, с детской площадкой. Внутри жилого комплекса, без шума от автомобильных дорог. Управляющая компания Полет.В микрорайоне расположены все объекты, необходимые для удобной и комфортной жизни в городе: детский Монтессори-центр Первые шаги, Салон красоты Зефир, детский бассейн BabyBoom, академия единоборств Budokan, школа 7, 33, 42, 135, 139, детский сад 100, 127, 245, 341, Карапузик, 359, почта, аптеки, предприятия бытовых услуг, кафе Престиж, гипермаркет Магнит, Гипер Лента, G-Drive Арена, Гипермаркет DNS, в нескольких остановках Мега, Леруа Мерлен, Фестиваль, Континент.Остановка Микрорайон Прибрежный в 2 минутах от дома. Пpeкpаcный ваpиaнт как для жилья, так и для сдaчи в aрeнду.

Читать полностью

    Для того, чтобы купить однокомнатную квартиру по адресу: Омск, ул. Крупской, 14, позвоните по телефону +7 (983) 112-56-19. Торопитесь! Объявление №30087466989 о продаже однокомнатной квартиры опубликовано 16 февраля 2026.

    Позвонить Написать
    6 200 000 Р80 900 $ или 68 760
    Агент
    +7 (983) 112-56-19
    Начать чат с агентом
    Похожие предложения
    1-к кв. Омская область, Омск ул. Крупской, 13/3 (46.2 м) - Фото 1
    1-к кв. Омская область, Омск ул. Крупской, 13/3 (46.2 м) - Фото 2
    1-комнатная квартира, общая площадь 46м², жилая 28м²

    Продается 1-комнатная квартира в современном районе на Левом берегу О квартире:Планировка изолирована. С/у совмещен. В квартире выполнен косметический ремонт в светлых тонах. В стоимость квартиры входит: кухонный гарнитур с раковиной, варочная поверхность,...
    • 46 м²
    • 1-ком
    • 17/19 эт.
    6 250 000 Р
    Агент
    +7 (913) Показать номер
    Посмотреть контакты
    1-к кв. Омская область, Омск ул. Крупской, 13/3 (39.5 м) - Фото 1
    1-к кв. Омская область, Омск ул. Крупской, 13/3 (39.5 м) - Фото 2
    1-комнатная квартира, общая площадь 39м², жилая 20м², кухня 11м²

    Ипотека от 12,25 Продаётся светлая и уютная квартира в престижном районе Левобережья — по адресу улица Крупской, дом 13/3. Это отличный вариант для тех, кто ценит комфорт и инфраструктуру Квартира свободна от проживания Характеристики квартиры:Площадь:...
    • 39 м²
    • 1-ком
    • 9/19 эт.
    • монолит
    6 200 000 Р
    Агент
    +7 (913) Показать номер
    Посмотреть контакты
    1-комнатная квартира: Омск, улица Крупской, 13/3 (39.5 м) - Фото 1
    1-комнатная квартира: Омск, улица Крупской, 13/3 (39.5 м) - Фото 2
    1-комнатная квартира, общая площадь 39м², жилая 20м², кухня 11м²

    Ипотека от 12,25 Продаётся светлая и уютная квартира в престижном районе Левобережья — по адресу улица Крупской, дом 13/3. Это отличный вариант для тех, кто ценит комфорт и инфраструктуру Квартира свободна от проживания Характеристики квартиры:...
    • 39 м²
    • 1-ком
    • 9/19 эт.
    6 200 000 Р
    Агент
    +7 (966) Показать номер
    Посмотреть контакты
    3-комнатная квартира: Омск, улица Крупской, 27 (63 м) - Фото 1
    3-комнатная квартира: Омск, улица Крупской, 27 (63 м) - Фото 2
    3-комнатная квартира, общая площадь 63м², жилая 39м², кухня 10м²

    Звоните, вы уже нашли самую выгодную 3-х комнатную на Крупской Один молодой собственник, чистая продажа, ключи в день полных расчетов.Документы для сделки готовы, звоните договоримся о просмотре в удобное для вас время, так как в квартире никто не живет.Квартира...
    • 63 м²
    • 3-ком
    • 6/9 эт.
    6 250 000 Р
    Агент
    +7 (958) Показать номер
    Посмотреть контакты
    1-к кв. Омская область, Омск ул. Крупской, 13А (46.28 м) - Фото 1
    1-к кв. Омская область, Омск ул. Крупской, 13А (46.28 м) - Фото 2
    1-комнатная квартира, общая площадь 46м², жилая 22м², кухня 12м²

    Продам отличную квартиру.Окна ПВХ, на две стороны Комфортный видовой этаж Сан.узлы отделаны кафельной плиткой Есть ниша для стирально-сушильной машины Балкон с витражным 5ти камерным остеклением Везде натяжные потолки Квартира очень теплая Сквозной...
    • 46 м²
    • 1-ком
    • 9/19 эт.
    • монолит
    6 300 000 Р
    Агент
    +7 (913) Показать номер
    Посмотреть контакты

    Не нашли подходящего объявления?

    Оставьте заявку, и наши риэлторы подберут квартиру в районе Омска

    (0)