Реализация объекта недвижимости приостановлена

Информация о квартире

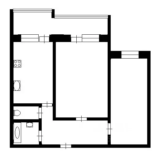
49.0 м2
Площадь
7.0 м2
Кухня
2
Комнаты
5
Этаж
9
Этажность

Дополнительная информация

Тип дома
кирпичный
Развернуть

2-к кв. Омская область, Омск Мельничная ул., 91 (49.2 м)

Просторная 2-х комнатная квартира, в кирпичном доме, что способствует хорошей теплоизоляции и сохраняет тепло зимой и прохладу летом. Квартира в жилом состоянии, при желании вы сможете обновить дизайн квартиры. Квартира состоит из гостиной, спальни, кухни, прихожой, раздельного санузла (декорирован керамической плиткой, установлена сантехника). Для хранения сезонных вещей большая застекленная лоджия.Так же собственники оставляют новым жильцам кухонный гарнитур, плиту, шкаф-купе, что поможет сократить Ваши расходы. Чистый подъезд, добропорядочные соседи, благоустроена придомовая территория, во дворе дома детская площадка, наличие парковочных мест. Дом расположен в спокойном тихом месте. Развитая инфраструктура. В шаговой доступности школа, детский сад, продовольственные магазины и супермаркеты, организации сфер услуг, удобная транспортная развязка. Помощь в оформлении ипотеки на самых выгодных условиях в городе. Одобрение необходимой суммы 95 в течение 2-х дней. Звоните прямо сейчас Все расскажем и покажем в удобное для Вас время.

Читать полностью

    Реализация объекта недвижимости приостановлена

    Не нашли подходящего объявления?

    Оставьте заявку, и наши риэлторы подберут квартиру в районе Омска

    (0)