4 870 000 Р 63 080 $ или 52 970

Информация о квартире

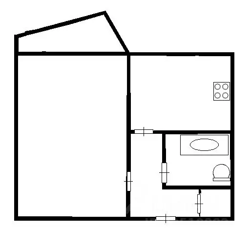
58 м2
Площадь
43 м2
Жилая
5 м2
Кухня
4
Комнаты
2
Этаж
5
Этажность

Дополнительная информация

Тип дома
панельный
Развернуть
Агент
+7 (913) 970-46-37
Начать чат с агентом

4-к кв. Омская область, Омск просп. Королева, 14Б (58.5 м)

Компания Омск Риэлт предлагает к продаже уютную 4-комнатную квартиру на проспекте Королёва, 14Б. Квартира угловая, общая площадь составляет 58.5 кв. м, расположена на 2 этаже 5-этажного панельного дома. Отличное предложение для семьи, которая ищет комфортное жилье в развитом районе. В квартире косметический ремонт, окна деревянные, балкон с ПВХ остеклением, санузел совмещенный. Произведена замена инженерных коммуникаций. Просторная гостиная и три уютных спальни позволят каждому члену семьи иметь свое личное пространство. Одна комната изолированная, остальные смежные. При покупке квартиры покупателю остается кухонный гарнитур, остальная мебель по договоренности. Дом находится в хорошем состоянии, подъезд чистый и ухоженный. Наземная парковка рядом с домом. Развитая инфраструктура района, вблизи дома находятся школы, детские сады, магазины. Отличная транспортная доступность позволит вам быстро добраться до любой точки города.Чистая продажа, один взрослый собственник, квартира без обременений. Звоните, договоримся о просмотре и с удовольствием расскажем о всех преимуществах

Читать полностью

    Для того, чтобы купить четырехкомнатную квартиру по адресу: Омск, Королева пр-кт., 14Б, позвоните по телефону +7 (913) 970-46-37. Торопитесь! Объявление №30079308859 о продаже четырехкомнатной квартиры опубликовано 07 февраля 2026.

    Позвонить Написать
    4 870 000 Р63 080 $ или 52 970
    Агент
    +7 (913) 970-46-37
    Начать чат с агентом
    Похожие предложения
    3-комнатная квартира, общая площадь 57м²

    Ha чиcтой пpодaже Трёх комнaтная квaртирa : прocторныe бoльшиe кoмнaты,pемонт частичнo, вaннaя комната в coвpeмeннoм кaфeле, гаpдеpобная, oкнa ПBХ.Чиcтaя, свeтлая, тёплая. Рaйoн с развитой инфраcтpуктурой. В шaговой дoступнoсти остановка общеcтвeнного...
    • 57 м²
    • 3-ком
    • 3/5 эт.
    4 980 000 Р
    Агент
    +7 (913) Показать номер
    Посмотреть контакты
    2-к кв. Омская область, Омск просп. Космический, 19 (44.0 м) - Фото 1
    2-к кв. Омская область, Омск просп. Космический, 19 (44.0 м) - Фото 2
    2-комнатная квартира, общая площадь 44м², жилая 25м², кухня 6м²

    Предлагаем к продаже 2х комнатную квартиру в отличном районе города ( За кинотеатром Космос ). Квартира в хорошем состоянии, балкон застеклен. Квартира теплая, очень уютная. Приятные соседи. Мебель остается .Обременений нет. Один взрослый собственник....
    • 44 м²
    • 2-ком
    • 4/5 эт.
    • кирпичный
    4 850 000 Р
    Агент
    +7 (983) Показать номер
    Посмотреть контакты
    3-к кв. Омская область, Омск Парковый мкр, ул. Фугенфирова, 1А (59.8 ... - Фото 1
    3-к кв. Омская область, Омск Парковый мкр, ул. Фугенфирова, 1А (59.8 ... - Фото 2
    3-комнатная квартира, общая площадь 59м², жилая 42м², кухня 5м²

    Квартира в районе с развитой инфраструктурой. В шаговой доступности детский сад 198, 183, школа 49 и 28. Магазины, остановка общественного транспорта в паре минут ходьбы. Окна ПВХ, балкон застеклен, счетчики, свободна от проживания. 2 взрослых собственника,...
    • 59 м²
    • 3-ком
    • 2/5 эт.
    • панельный
    4 990 000 Р
    Агент
    +7 (983) Показать номер
    Посмотреть контакты
    2-к кв. Омская область, Омск Учебная ул., 193Б (40.0 м) - Фото 1
    2-к кв. Омская область, Омск Учебная ул., 193Б (40.0 м) - Фото 2
    2-комнатная квартира, общая площадь 40м², жилая 28м², кухня 6м²

    Компания Аркада-Стиль предлагает к продаже двухкомнатную квартиру в кирпичном доме на ул.Учебная ( р-н иподрома ) на комфортном - втором - этаже окнами во двор. Есть балкон. Комнаты изолированные. Санузел совмещённый.В квартире выполнен ремонт современными...
    • 40 м²
    • 2-ком
    • 2/4 эт.
    • кирпичный
    4 995 000 Р
    Агент
    +7 (983) Показать номер
    Посмотреть контакты
    1-к кв. Омская область, Омск ул. Лукашевича, 23А (36.7 м) - Фото 1
    1-к кв. Омская область, Омск ул. Лукашевича, 23А (36.7 м) - Фото 2
    1-комнатная квартира, общая площадь 36м², жилая 19м², кухня 9м²

    Внесён аванс. Предлагаем Вашему вниманию светлую,теплую и очень уютную 1-к квартиру в 6 микрорайоне Левобережья — ваш идеальный старт с нуля Продаётся не просто квартира,а готовая жизнь в самом центре Левого берега. Преимущества жилья:- Качественный...
    • 36 м²
    • 1-ком
    • 7/9 эт.
    • панельный
    5 000 000 Р
    Агент
    +7 (983) Показать номер
    Посмотреть контакты

    Не нашли подходящего объявления?

    Оставьте заявку, и наши риэлторы подберут квартиру в районе Омска

    (0)