5 830 000 Р 73 870 $ или 63 810

Информация о квартире

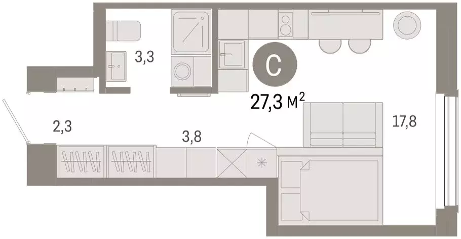
27 м2
Площадь
17 м2
Жилая
3 м2
Кухня
студия
Комнат
10
Этаж
16
Этажность
Развернуть
Агент
+7 (930) 327-41-50
Начать чат с агентом

Студия Омская область, Омск (27.27 м)

Старт продаж нового дома. По всем вопросам звоните в офис продаж, мы вам все подробно расскажем Просторная 1-комн. студия с предчистовой отделкой в Кварталы Драверта на 10 этаже. Общая площадь: 27.27 кв.м., площадь гостиной 21.6 кв.м., из которых 3.8 кв.м. выделено под кухонную зону. Все окна выходят на одну сторону. В квартире один совмещенный санузел. Высота потолков 2.82 м. Дом монолитный, многоподъездный, переменной этажности, от 8 до 16 этажей. Квартира находится в 1-й секции высотой 16 этажей в корпусе 6. На этаже 7 квартир. В подъезде 2 пассажирских и 1 грузовой лифт. Окончание строительства - 2 квартал 2028 года. Оформление сделки по договору долевого участия. Студия в Кварталах Драверта. Особенности планировки: предчистовая отделка. квартиры в нашей базе: ДВТ06-Ж1.10.1. Кварталы Драверта — проект преобразования левого берега Иртыша, расположенный в одном из самых быстроразвивающихся районов города в границах улиц 3-й Островской, Шаронова, Крупской и 1-й Рыбачьей. С центром его связывают два моста — имени 60-летия ВЛКСМ и 60-летия Победы. В пешей доступности находятся несколько детских садов, продуктовые магазины, кафе, аптеки и остановки общественного транспорта. Во дворе нет машин. Это приватное пространство, попасть в которое могут только жители. Здесь спроектированы: променад, лаунжи с садовой мебелью, где, развалившись на шезлонге, можно почитать или поработать, и детские площадки. Со стороны улицы Крупской мы предусмотрели сквер, со стороны улицы Шаронова — пешеходный бульвар. Эти общественные пространства отделены от двора двухметровыми зелёными изгородями. Они станут локальными точками притяжения и будут способствовать развитию добрососедства. Также за пределами двора мы создали спортивный хаб с баскетбольной площадкой в центре. Напротив мы разместили деревянную зрительскую трибуну, слева — теннисные столы, справа — площадку для паркура. Z6SbDI

Читать полностью
    Позвонить Написать
    5 830 000 Р73 870 $ или 63 810
    Агент
    +7 (930) 327-41-50
    Начать чат с агентом
    Похожие предложения в Омске
    Квартира-студия: Омск, Кировский округ (27.27 м) - Фото 1
    Квартира-студия: Омск, Кировский округ (27.27 м) - Фото 2
    студия, общая площадь 27м², жилая 17м²

    Старт продаж нового дома. Информация по телефону, наши менеджеры вам все расскажут Просторная 1-комн. студия с предчистовой отделкой в Кварталы Драверта на 9 этаже. Общая площадь: 27.27 кв.м., площадь гостиной 21.6 кв.м., из которых 3.8 кв.м. выделено...
    • 27 м²
    • студия-ком
    • 9/16 эт.
    5 720 000 Р
    Агент
    +7 (960) Показать номер
    Посмотреть контакты
    Студия Омская область, Омск  (27.27 м) - Фото 1
    Студия Омская область, Омск  (27.27 м) - Фото 2
    студия, общая площадь 27м², жилая 17м², кухня 3м²

    Старт продаж нового дома. Информация по телефону, мы вам все подробно расскажем Продается 1-комн. студия с предчистовой отделкой в Кварталы Драверта на 10 этаже. Общая площадь: 27.27 кв.м., площадь гостиной 21.6 кв.м., из которых 3.8 кв.м. выделено...
    • 27 м²
    • студия-ком
    • 10/16 эт.
    • монолит
    5 830 000 Р
    Агент
    +7 (901) Показать номер
    Посмотреть контакты
    Студия Омская область, Омск  (27.27 м) - Фото 1
    Студия Омская область, Омск  (27.27 м) - Фото 2
    студия, общая площадь 27м², жилая 17м², кухня 3м²

    Старт продаж нового дома. Звоните, мы вам все подробно расскажем Просторная 1-комн. студия с предчистовой отделкой в Кварталы Драверта на 9 этаже. Общая площадь: 27.27 кв.м., площадь гостиной 21.6 кв.м., из которых 3.8 кв.м. выделено под кухонную зону....
    • 27 м²
    • студия-ком
    • 9/16 эт.
    • монолит
    5 720 000 Р
    Агент
    +7 (901) Показать номер
    Посмотреть контакты
    1-к кв. Омская область, Омск ЖК Зеленый сад,  (39.92 м) - Фото 1
    1-к кв. Омская область, Омск ЖК Зеленый сад,  (39.92 м) - Фото 2
    1-комнатная квартира, общая площадь 39м²

    Продаётся 1-комнатная квартира в строящемся доме (Дом 1), срок сдачи: IV-кв. 2026, общей площадью 39.92 кв.м., на 1 этаже. Новый жилой комплекс Ясно от Завода строительных конструкцийасположен по адресу: г. Омск, ул. 21-я Амурская.
    • 39 м²
    • 1-ком
    • 1/9 эт.
    5 890 000 Р
    Агент
    +7 (991) Показать номер
    Посмотреть контакты
    1-к кв. Омская область, Омск ЖК Зеленый сад,  (39.92 м) - Фото 1
    1-к кв. Омская область, Омск ЖК Зеленый сад,  (39.92 м) - Фото 2
    1-комнатная квартира, общая площадь 39м²

    Продаётся 1-комнатная квартира в строящемся доме (Дом 1), срок сдачи: IV-кв. 2026, общей площадью 39.92 кв.м., на 5 этаже. Новый жилой комплекс Ясно от Завода строительных конструкцийасположен по адресу: г. Омск, ул. 21-я Амурская.
    • 39 м²
    • 1-ком
    • 5/9 эт.
    5 890 000 Р
    Агент
    +7 (991) Показать номер
    Посмотреть контакты

    Не нашли подходящего объявления?

    Оставьте заявку, и наши риэлторы подберут квартиру в новостройке в районе Омска

    (0)