Россия, Омская область, Омск, 15-я Марьяновская улица, 89
7 700 000 Р 97 280 $ или 83 840

Информация о коттедже

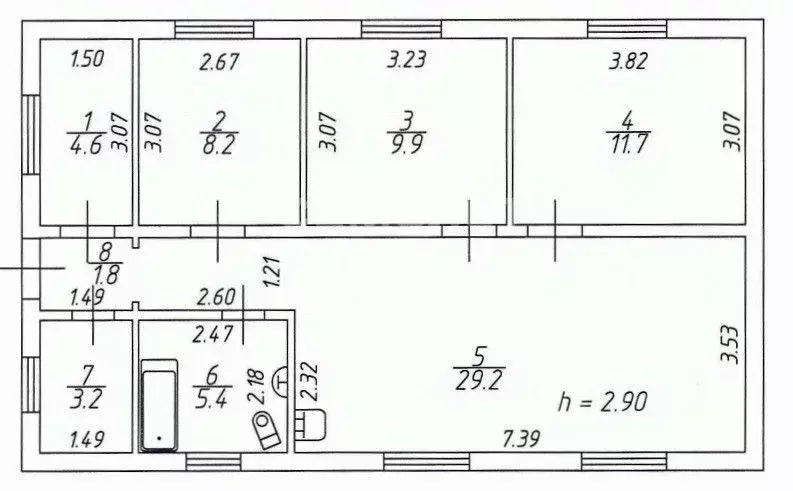
103 м2
Площадь
1
Этажность
5 cоток
Участок

Дополнительная информация

Дом продаётся вместе с участком
есть
Развернуть
Агент
+7 (913) 620-30-21
Начать чат с агентом

Дом в Омская область, Омск Порт-Артур мкр, ул. 15-я Марьяновская, 89 ...

Вашему вниманию наше шикарное предложение частного дома с двумя отдельными входами для дружной и большой семьи , но в тоже время с отдельным пространством друг от друга это как дети с родителями или братьев и сестер , как и в нашем варианте . Одна половина полностью жилая с газификацией и постоянным проживание . А вторая часть дома в черновом варианте где Вы сможете воплотить Ваши самые смелые фантазии и решения . Довольно большой земельный участок вам позволит вырастить все любимые овощи и фрукты . Обустроенная детская беседка .Во дворах место для авто . Документы готовы полностью , постройка от 2014 года . Две половины с раздельными электрическими счетчиками . Так же разделены и счета . Дом в долевой собственности по 1/2 . Два взрослых собственника . Дружные соседи . В шаговой доступности продуктовые магазины , Школа и остановка общественного транспорта .Более подробная информация по телефону либо при просмотре . Звоните покажем в удобное для Вас время . Торг реальному покупателю . Помощь в сопровождении сделки при необходимости .

Читать полностью

    Для того, чтобы купить 1-этажный коттедж по адресу: Омск, 15-я Марьяновская улица, 89, позвоните по телефону +7 (913) 620-30-21. Торопитесь! Объявление №50016804949 о продаже одноэтажного коттеджа опубликовано 23 февраля 2026.

    Позвонить Написать
    7 700 000 Р97 280 $ или 83 840
    Агент
    +7 (913) 620-30-21
    Начать чат с агентом
    Похожие предложения
    Дом в Омская область, Омск пер. 1-й Пикетный, 57 (78 м) - Фото 1
    Дом в Омская область, Омск пер. 1-й Пикетный, 57 (78 м) - Фото 2
    1 этаж, общая площадь 78м², участок 4 сотки

    Арт.На чистой продаже отдельно стоящий жилой дом 2021 года постройки по адресу 1-й Пикетный переулок 57.Общая площадь дома составляет 78 м2. Дом тёплый, построен из газобетонных блоков. Фундамент ленточный. Высокие потолки в 2.9 м Земельный участок 4...
    • 1 эт.
    • 78 м²
    • 4 сот.
    7 700 000 Р
    Агент
    +7 (983) Показать номер
    Посмотреть контакты
    Дом в Омская область, Омск ул. 1-я Солнечная, 43 (69 м) - Фото 1
    Дом в Омская область, Омск ул. 1-я Солнечная, 43 (69 м) - Фото 2
    1 этаж, общая площадь 68м², участок 4 сотки

    Арт.. Компания Роспрофи просторный и теплый дом в Кировском округе города Омска.Общая информация:- Общая площадь дома: 70 м- Участок: 4 сотки, межевание выполненоПланировка:- 2 спальни- Кабинет- Кухня-гостиная с выходом на террасу- 2 санузла- Котельная-...
    • 1 эт.
    • 68 м²
    • 4 сот.
    7 800 000 Р
    Агент
    +7 (913) Показать номер
    Посмотреть контакты
    Дом в Омская область, Омск Заветы Мичурина СНТ, аллея 1-я (204 м) - Фото 1
    Дом в Омская область, Омск Заветы Мичурина СНТ, аллея 1-я (204 м) - Фото 2
    3 этажа, общая площадь 203м², участок 5 соток

    Продаю коттедж.5.95 соток, 203 кв.м. Документы все в порядке, и готовы к продаже. Межевание тоже есть. Прописка городская, дороги всегда доступны для любого транспорта и в зимний период чистятся регулярно. Задолженностей нет. Один собственник. Остановка,...
    • 3 эт.
    • 203 м²
    • 5 сот.
    7 700 000 Р
    Агент
    +7 (913) Показать номер
    Посмотреть контакты
    Дом в Омск, 1-й Пикетный переулок, 57 (78.1 м) - Фото 1
    Дом в Омск, 1-й Пикетный переулок, 57 (78.1 м) - Фото 2
    1 этаж, общая площадь 78м², участок 4 сотки

    Арт.На чистой продаже отдельно стоящий жилой дом 2021 года постройки по адресу 1-й Пикетный переулок 57. Общая площадь дома составляет 78 м2. Дом тёплый, построен из газобетонных блоков. Фундамент ленточный. Высокие потолки в 2.9 м Земельный участок...
    • 1 эт.
    • 78 м²
    • 4 сот.
    7 700 000 Р
    Агент
    +7 (966) Показать номер
    Посмотреть контакты
    Дом в Омская область, Омск ул. Дружбы (112 м) - Фото 1
    Дом в Омская область, Омск ул. Дружбы (112 м) - Фото 2
    1 этаж, общая площадь 112м², участок 8 соток

    Продаётся добротный тёплый чистый дом для большой семьи, кирпичный - обшит сайдингом, полностью благоустроен, ванная, санузел - в доме, отопление газовое, центральные водопровод и канализация, 4 спальни, гостиная, большая кухня - 16 м. Состояние хорошее,...
    • 1 эт.
    • 112 м²
    • 8 сот.
    7 650 000 Р
    Агент
    +7 (983) Показать номер
    Посмотреть контакты

    Не нашли подходящего объявления?

    Оставьте заявку, и наши риэлторы подберут купить дом в районе Омска

    (0)