Россия, Омская область, Омск, ул. 1-я Производственная, 3
8 000 000 Р 98 830 $ или 85 310

Информация о коттедже

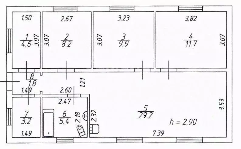
108 м2
Площадь
1
Этажность
5 cоток
Участок

Дополнительная информация

Дом продаётся вместе с участком
есть
Развернуть
Агент
+7 (913) 632-21-48
Начать чат с агентом

Дом в Омская область, Омск ул. 1-я Производственная, 3 (108 м)

Предлагаем к продаже замечательный, очень ухоженный, теплый, светлый, полностью благоустроенный дом в центральном районе. Дом кирпичный, с хорошей планировкой, высота потолков 2, 70, место сухое, участок облагорожен. Двор выложен тротуарной плиткой, во дворе имеются многолетние зеленые насаждения, кирпичная добротная баня, с комнатой отдыха, и парилкой с помывочной. Два капитальных гаража.В доме выполнен современный качественный ремонт из добротных, износостойких материалов, все коммуникации новые, крыша новая, все окна ПВХ. Просторная кухня, 17 кв.м., оснащена современным, функциональным кухонным гарнитуром. Отличная транспортная развязка, асфальтированные дороги, рядом с домом расположена оптовая продовольственная база, два детских сада ( 179 и 344, две школы (90 и 48), остановки общественного транспорта Фабрика нетканных материалов и База Универсальная , магазины Магнит, Ярче, Магнит Косметик, аптеки, парикмахерские, Поликлиника 2, Детская поликлиника 8, и т.д.Объект полностью готов к заселению и не требует дополнительных вложений. Код пользователя: 170250Номер в базе: 9815351

Читать полностью

    Для того, чтобы купить 1-этажный коттедж по адресу: Омск, ул. 1-я Производственная, 3, позвоните по телефону +7 (913) 632-21-48. Торопитесь! Объявление №50016349500 о продаже одноэтажного коттеджа опубликовано 2 дня назад.

    Позвонить Написать
    8 000 000 Р98 830 $ или 85 310
    Агент
    +7 (913) 632-21-48
    Начать чат с агентом
    Похожие предложения
    Дом в Омская область, Омск Порт-Артур мкр, ул. 15-я Марьяновская, 89 ... - Фото 1
    Дом в Омская область, Омск Порт-Артур мкр, ул. 15-я Марьяновская, 89 ... - Фото 2
    1 этаж, общая площадь 103м², участок 5 соток

    Вашему вниманию наше шикарное предложение частного дома с двумя отдельными входами для дружной и большой семьи , но в тоже время с отдельным пространством друг от друга это как дети с родителями или братьев и сестер , как и в нашем варианте . Одна половина...
    • 1 эт.
    • 103 м²
    • 5 сот.
    7 900 000 Р
    Агент
    +7 (983) Показать номер
    Посмотреть контакты
    Дом в Омская область, Омск пер. 1-й Пикетный, 57 (78 м) - Фото 1
    Дом в Омская область, Омск пер. 1-й Пикетный, 57 (78 м) - Фото 2
    1 этаж, общая площадь 78м², участок 4 сотки

    Арт.На чистой продаже отдельно стоящий жилой дом 2021 года постройки по адресу 1-й Пикетный переулок 57.Общая площадь дома составляет 78 м2. Дом тёплый, построен из газобетонных блоков. Фундамент ленточный. Высокие потолки в 2.9 м Земельный участок 4...
    • 1 эт.
    • 78 м²
    • 4 сот.
    8 000 000 Р
    Агент
    +7 (983) Показать номер
    Посмотреть контакты
    Дом в Омск, микрорайон Порт-Артур, Московская улица (84.3 м) - Фото 1
    Дом в Омск, микрорайон Порт-Артур, Московская улица (84.3 м) - Фото 2
    1 этаж, общая площадь 84м², участок 5 соток

    Предлагаем к покупке дом 1991 года постройки, выгодное сочетание цены и качества. Общая площадь здания составляет 84.3 кв. м. Конструкция из кирпича ( сайдинг) обеспечивает тепло и уют в любое время года, этому способствуют высокие потолки и современные...
    • 1 эт.
    • 84 м²
    • 5 сот.
    8 000 000 Р
    Агент
    +7 (919) Показать номер
    Посмотреть контакты
    Дом в Омская область, Омск Порт-Артур мкр, ул. 14-я Электровозная (166 ... - Фото 1
    Дом в Омская область, Омск Порт-Артур мкр, ул. 14-я Электровозная (166 ... - Фото 2
    2 этажа, общая площадь 166м², участок 377 соток

    Продается 2-х этажный дом (1 этаж кирпич, 2 этаж брус), 1995 года постройки, благоустроенный: центральный водопровод, газ, канализация - септик, с/у в доме, кирпичная баня и гараж, кирпичные хозпостройки.
    • 2 эт.
    • 166 м²
    • 377 сот.
    7 900 000 Р
    Агент
    +7 (913) Показать номер
    Посмотреть контакты
    Дом в Омская область, Омский район, Магистральное с/пос, Деревня ... - Фото 1
    Дом в Омская область, Омский район, Магистральное с/пос, Деревня ... - Фото 2
    2 этажа, общая площадь 123м², участок 9 соток

    Компания Аркада-Стиль предлагает к продаже готовый, новый кирпичный дом с террасой в МКР Зелёное поле . Дом готов, уже выполнена предчистовая отделка:- стены: 1,5 кирпича + утеплитель ( пенополистирол ) + вент. зазор 3 см + облицовочный кирпич.-...
    • 2 эт.
    • 123 м²
    • 9 сот.
    8 000 000 Р
    Агент
    +7 (983) Показать номер
    Посмотреть контакты

    Не нашли подходящего объявления?

    Оставьте заявку, и наши риэлторы подберут купить дом в районе Омска

    (0)