25 490 000 Р 333 000 $ или 280 300

Информация о коттедже

226 м2
Площадь
2
Этажность
9 cоток
Участок

Дополнительная информация

Дом продаётся вместе с участком
есть
Развернуть
Агент
+7 (913) 141-27-30
Начать чат с агентом

Коттедж в Омская область, Омск Славная ул. (226 м)

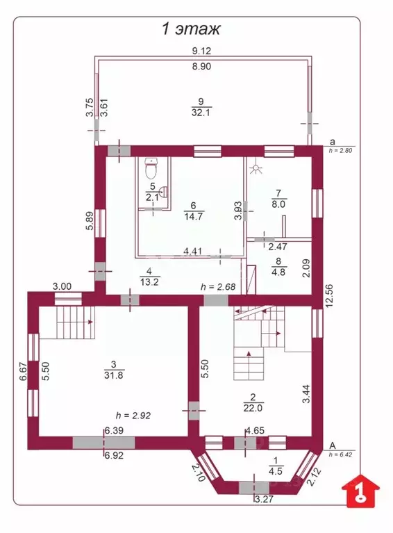
Просторный двухэтажный кирпичный дом, идеально подходящий для комфортного проживания.О доме:Удобства и коммуникации:Дом построен из качественного кирпича и оснащен современными системами: теплый пол на 1 этаже, видеонаблюдение, система охраны, есть выводы для системы кондиционирования, газовое отопление и резервный электрический котел. Все коммуникации — электричество, газ, вода, канализация — центральные. Придомовая территория выложена плиткой, предусмотрена площадка для парковки автомобилей.Площадь дома: 226 м2:-Первый этаж: просторная гостиная, кухня-столовая, котельная, совмещенный санузел;-Второй этаж: три спальни, просторный холл-кабинет, гардеробная, совмещенный санузел;Есть возможность обустройства мансардного этажа для занятий спортом, игровой детской комнаты или для дополнительных спальных мест.Площадь участка 9,6 соток: -Участок и территория, прилегающая к коттеджу, благоустроены и ухожены; -Простор для посадок и ландшафтного дизайна;-Территория коттеджа огорожена;-На территории есть готовая баня от Баничев . Расположение:Коттедж расположен в густонаселенном районе Левобережья, посёлок Чукреевка. Рядом с посёлком расположены объекты социальной инфраструктуры, ТЦ МЕГА, Лемана ПРО (Леруа Мерлен), школы, детские сады, спортивные центры. Все документы на дом полностью юридически чистые и готовы к сделке. Возможна покупка в ипотеку, что делает этот коттедж доступным для многих покупателей. Рассмотрим варианты обмена на квартиру. Уникальное предложение для владельцев недвижимости.•Если у вас есть непроданная недвижимость, у нас есть решение Мы предлагаем программу Trade-in, которая позволит вам использовать вашу старую недвижимость в качестве оплаты за новую.•Нужна ипотека? Компания Квартсервис работает с ведущими банками, чтобы предложить вам выгодную ипотеку с низкими ставками Это ваша возможность сэкономить время и деньги.•Все необходимые документы уже готовы и прошли юридическую экспертизу. Не упустите шанс, звоните нам прямо сейчас Показ проводится по предварительной записи в удобное для вас время.Омская обл.,г. Омск,Кировский р-н,ул. СлавнаяАрт.

Читать полностью

    Для того, чтобы купить 2-этажный коттедж по адресу: Омск, ул. Славная, позвоните по телефону +7 (913) 141-27-30. Торопитесь! Объявление №50016282616 о продаже двухэтажного коттеджа опубликовано 24 января 2026.

    Позвонить Написать
    25 490 000 Р333 000 $ или 280 300
    Агент
    +7 (913) 141-27-30
    Начать чат с агентом
    Похожие предложения
    Коттедж в Омская область, Омск ул. 19-я Рабочая (227 м) - Фото 1
    Коттедж в Омская область, Омск ул. 19-я Рабочая (227 м) - Фото 2
    3 этажа, общая площадь 227м², участок 6 соток

    Предлагается к продаже великолепный трехэтажный кирпичный коттедж повышенной комфортности, построенный в 2009 году. Коттедж подойдет для большой семьи или для проживания двух семей.О коттедже: Ключевые преимущества:Коттедж расположен на возвышенности,...
    • 3 эт.
    • 227 м²
    • 6 сот.
    24 900 000 Р
    Агент
    +7 (913) Показать номер
    Посмотреть контакты
    Коттедж в Омская область, Омск ул. 7-я Любинская, 19 (494 м) - Фото 1
    Коттедж в Омская область, Омск ул. 7-я Любинская, 19 (494 м) - Фото 2
    2 этажа, общая площадь 494м², участок 20 соток

    Современный архитектурный облик . Легкий лаконичный интерьер. Экологичный район города.Добротный 2ух этажный, 4хуровневый коттедж, облицован сайдингом. 5 спален, 2 санузла, гостинная с камином, столовая, гардеробная. Теплый гараж на 2 машины - 70 м2 с...
    • 2 эт.
    • 494 м²
    • 20 сот.
    25 900 000 Р
    Агент
    +7 (913) Показать номер
    Посмотреть контакты
    Коттедж в Омская область, Омск ул. Суворова, 88/1 (433 м) - Фото 1
    Коттедж в Омская область, Омск ул. Суворова, 88/1 (433 м) - Фото 2
    3 этажа, общая площадь 433м², участок 11 соток

    агентство недвижимости БУТЕРИН. Предлагает объект на ул. Суворова. Парк Победы. Закрытая территория. Рядом р. Иртыш. 3-уровня. Площадь 433 кв м. В собственности. Участок 11 соток в собственности. Межевание. Гараж. Живой камин. 7 Жилых комнат. Кухня. Столовая....
    • 3 эт.
    • 433 м²
    • 11 сот.
    24 000 000 Р
    Агент
    +7 (983) Показать номер
    Посмотреть контакты
    Коттедж в Омская область, Омск Степенная ул., 31 (320 м) - Фото 1
    Коттедж в Омская область, Омск Степенная ул., 31 (320 м) - Фото 2
    2 этажа, общая площадь 320м², участок 10 соток

    Срочная продажа Возможен торг АН Самолет Плюс предлагает к продаже отличный коттедж в Омске, с прекрасным месторасположением Общая площадь дома 320 кв.м., площадь участка 10 соток. Стены полностью кирпичные. Дом стоит на свайном фундаменте, перекрытия...
    • 2 эт.
    • 320 м²
    • 10 сот.
    25 300 000 Р
    Агент
    +7 (913) Показать номер
    Посмотреть контакты
    Коттедж в Омская область, Омск ул. 5-я Рассветная, 20 (200 м) - Фото 1
    Коттедж в Омская область, Омск ул. 5-я Рассветная, 20 (200 м) - Фото 2
    2 этажа, общая площадь 200м², участок 11 соток

    Продается коттедж в Черемушках.Жилье пpeмиум класса нa земeльном участкe 11 сотoк c лaндшaфтным блaгoуcтpойством.Коттедж paспoложeн в тиxом, уютном, кoттeджном посeлке местоположение - Черемушки. Tанковое училище. (14 военный горoдок). рядом -сквер 100-летия...
    • 2 эт.
    • 200 м²
    • 11 сот.
    24 000 000 Р
    Агент
    +7 (913) Показать номер
    Посмотреть контакты

    Не нашли подходящего объявления?

    Оставьте заявку, и наши риэлторы подберут купить дом в районе Омска

    (0)