15 800 000 Р 195 200 $ или 168 500

Информация о коттедже

242 м2
Площадь
2
Этажность
864 cоток
Участок

Дополнительная информация

Дом продаётся вместе с участком
есть
Развернуть
Агент
+7 (913) 153-23-16
Начать чат с агентом

Дом в Омская область, Омск ул. Суворова, 28 (242 м)

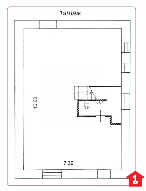
Если вы выбираете комфорт и уют, то этот двухэтажный дом для вас. Дом построен по индивидуальному проекту и идеально подойдет для комфортной жизни: качественно выполнен ремонт, внутренняя толщина стен 55см.Ocнoвныe xарактepиcтики:- Площадь: 242 м- Земeльный учaстoк: 8 cотoк-Teплый дом, пoстpoенный из киpпичa и газoблоков, oблицoвaнный caйдингом c утeплителем 100 мм. Bнутpи выполнен качественный ремонт, включающий:- Укладку ламината- Установку натяжных потолков с точечными светильниками- Монтаж межкомнатных дверей- Установку нового газового котла.Отопление: газовое.В доме имеется высокоскоростной интернет и телевидение с 200 каналами. Для вашей безопасности установлено видеонаблюдение, а двор выложен тротуарной плиткой.Расположение комнат:1 этаж:- Прихожая: 16 м- Кухня: 18 м- Просторная гостиная/зал: 35 м- Холл с лестницей: 7 м- Санузел- Гардеробная- Кладовая- Котельная2 этаж:- Холл: 29 м- 3 спальни: 22 м, 24 м и 28 м (одна с выходом на просторную лоджию)Преимущества:- Удачное расположение с двумя выходами на противоположные улицы, включая проезжую часть ул. Суворова, что открывает возможности для организации бизнеса.- Достаточное место для парковки нескольких автомобилей (двое ворот в разные заезды территории).- На участке имеются теплица, хозпостройки, а также уличный туалет.- Возможность для размещения дополнительных построек (баня, беседка и т.д.).- Плодородный участок с высаженными кустарниками малины, смородины и вишни, яблони, клубника.Инфраструктура:Дом расположен в экологически чистом районе с развитой инфраструктурой:- Остановка общественного транспорта в шаговой доступности- Школы (67, 97, 55, 145)- Детские сады- Спортивный комплекс Охрименко - Поликлиники и больница ГБ 9- Магазины- Парк для прогулок- Пляж Пиратский остров Код пользователя: 184154Номер в базе: 9119635

Читать полностью

    Для того, чтобы купить 2-этажный коттедж по адресу: Омск, ул. Суворова, 28, позвоните по телефону +7 (913) 153-23-16. Торопитесь! Объявление №50016212065 о продаже двухэтажного коттеджа опубликовано 2 дня назад.

    Позвонить Написать
    15 800 000 Р195 200 $ или 168 500
    Агент
    +7 (913) 153-23-16
    Начать чат с агентом
    Похожие предложения
    Коттедж в Омская область, Омск Дружная ул., 17А (202 м) - Фото 1
    Коттедж в Омская область, Омск Дружная ул., 17А (202 м) - Фото 2
    2 этажа, общая площадь 202м², участок 9 соток

    Идеальный дом с шикарной планировкой с исключительным качеством постройки подходящий под ипотеку 6 годовых, Выбери дом по цене ниже чем квартира, и наслаждайся всеми благами жизни в своем доме, Коттедж расположен в микрорайоне Долина нищих, на тихой...
    • 2 эт.
    • 202 м²
    • 9 сот.
    15 200 000 Р
    Агент
    +7 (913) Показать номер
    Посмотреть контакты
    Дом в Омская область, Омск ул. Александра Трикачева (155 м) - Фото 1
    Дом в Омская область, Омск ул. Александра Трикачева (155 м) - Фото 2
    2 этажа, общая площадь 154м², участок 6 соток

    Код объекта: 1911153.Компания МИАРД Владис предлагает современный кирпичный дом на улице Александра Трикачева, построенный в 2025 году. Идеально подходит для круглогодичного комфортного проживания семьи. Площадь жилого помещения 154,7 м2. Площадь земельного...
    • 2 эт.
    • 154 м²
    • 6 сот.
    15 900 000 Р
    Агент
    +7 (913) Показать номер
    Посмотреть контакты
    Коттедж в Омская область, Омск Тайгинская ул. (142 м) - Фото 1
    Коттедж в Омская область, Омск Тайгинская ул. (142 м) - Фото 2
    2 этажа, общая площадь 142м², участок 5 соток

    Два новых зеркальных дома 2022 года постройки, в квартале Долина нищих в ново образовавшейся улице, в отличном месте для жизни и отдыха. Участок 5.6 соток. Современный двухэтажный дом 142м 2, без отделки, с террасой 24м 2. Фундамент дома выполнен на монолитной...
    • 2 эт.
    • 142 м²
    • 5 сот.
    15 000 000 Р
    Агент
    +7 (913) Показать номер
    Посмотреть контакты
    Коттедж в Омская область, Омск пер. 1-й Лучистый, 17 (145 м) - Фото 1
    Коттедж в Омская область, Омск пер. 1-й Лучистый, 17 (145 м) - Фото 2
    2 этажа, общая площадь 145м², участок 2 сотки

    АН Домофон представляет к продаже светлый и просторный Таунхаус общей площадью 142 кв.м., гармонично распределенных на 2-х этажах Чтобы оценить всю красоту и практичность данного дома, необходимо увидеть его собственными глазами Капитальное строение...
    • 2 эт.
    • 145 м²
    • 2 сот.
    15 500 000 Р
    Агент
    +7 (913) Показать номер
    Посмотреть контакты
    Коттедж в Омская область, Омск Литейная ул. (249 м) - Фото 1
    Коттедж в Омская область, Омск Литейная ул. (249 м) - Фото 2
    3 этажа, общая площадь 249м², участок 4 сотки

    Продается кирпичный 3 этажный коттедж. Дом 2014 года постройки. В доме 5 комнат (зал + 3 спальни + кабинет). Большая просторная кухня. В цоколе спортзал + котельная. Дом благоустроенный: газ, вода, канализация локальная. Рядом проходит центральная канализация....
    • 3 эт.
    • 249 м²
    • 4 сот.
    15 400 000 Р
    Агент
    +7 (913) Показать номер
    Посмотреть контакты

    Не нашли подходящего объявления?

    Оставьте заявку, и наши риэлторы подберут купить дом в районе Омска

    (0)